2 Bedroom Ground Floor Flat
£185,000
Thornwood, Glasgow

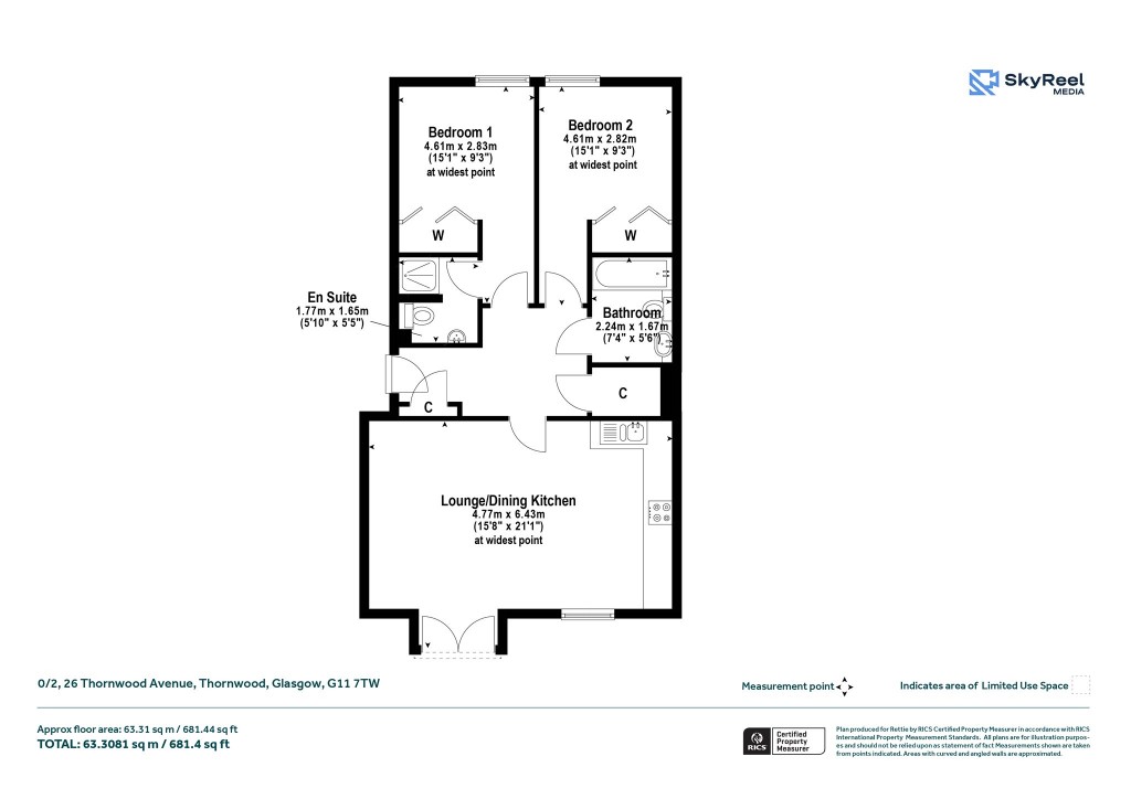
Floorplans For Thornwood, Glasgow
EPC Graph for Thornwood, Glasgow}

Description


Conveniently located on Thornwood Avenue in the ever popular West End, this immediately impressive ground floor flat offers a modern finish and excellent everyday convenience. Set within a well maintained development, the property enjoys generous natural light and a stylish open plan living space. The accommodation is beautifully presented throughout. A welcoming reception hallway with two useful storage cupboards leads to a bright lounge and dining area that is open to a contemporary fitted kitchen with integrated appliances. There are two double bedrooms, both with fitted wardrobes. The principal bedroom has an en suite shower room, and there is a separate modern three piece family bathroom. Thornwood places you close to Dumbarton Road, Crow Road and Byres Road for a wide choice of independent shops, cafés, restaurants and bars. The nearby Cross Hill park and Clydeside Walkway provides excellent outdoor space. Partick offers rail, subway and bus links across the city, and there is straightforward road access to the city centre and motorway network. Accommodation: • Security entry system. • Communal entrance hall. • Welcoming reception hall with two storage cupboards. • Bright main lounge and dining room open to a contemporary fitted kitchen with integrated appliances. • Bedroom one with fitted wardrobes and en suite shower room. • Bedroom two with fitted wardrobes. • Stylish three piece family bathroom. • Gas central heating. • Double glazing. • Off street resident’s parking. EPC: C Council Tax: E Tenure: Freehold

Reference: GWE250954

Request a viewing for this property

Simply fill out the form below or alternatively call us on 020 7839 0888

* Mandatory fields