5 Bedroom Terraced House
£539,000
Jordanhill, Glasgow

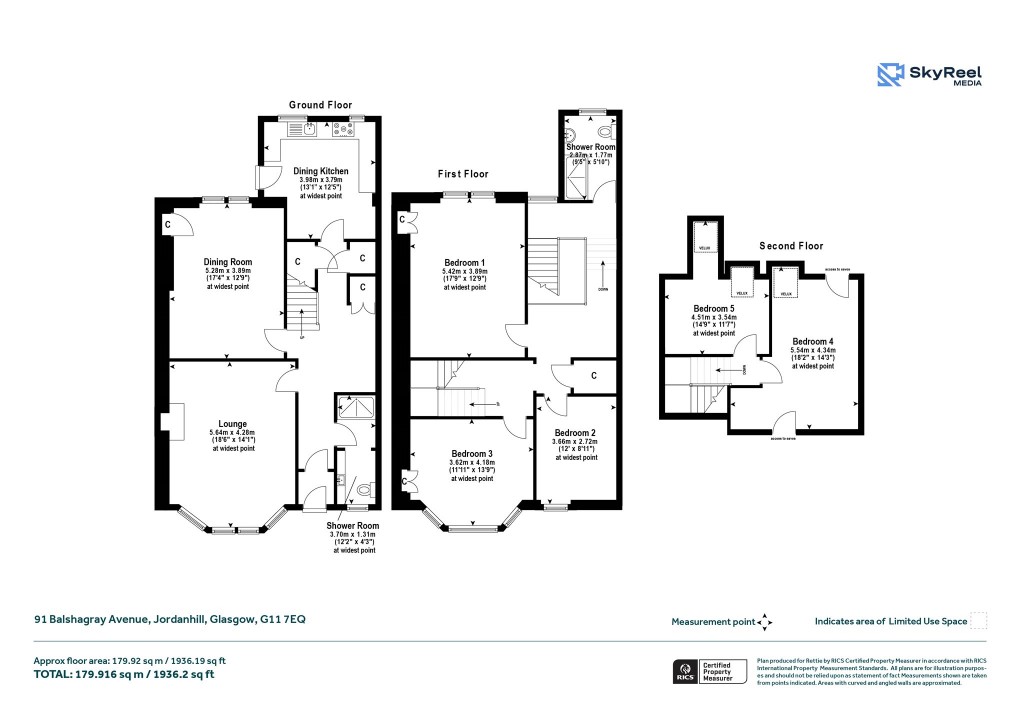
Floorplans For Jordanhill, Glasgow
EPC Graph for Jordanhill, Glasgow}

Description


This distinguished five bedroom mid terraced home is arranged across three levels and retains a wealth of period charm, while offering practical family proportions in the coveted Jordanhill School catchment. Initially welcomed by an inviting reception hall, the accommodation flows into a refined lounge with broad four section bay window. The rear dining room remains separa te to the kitchen, providing great versatility for accommodating guests, hosting special occasions or for reconfiguration to a dedicated sleeping quarters or office space. The fitted kitchen can also host casual meals and provides direct access to a lovely mature gravel garden with a patio section and raised decking. An atypical ground floor shower room provides exceptional convenience and is infrequently found in homes of this nature, with the characteristic mid level landing hosting a second shower room. Three double bedrooms comprise the first floor, while the top floor extends into the attic to provide two additional bedrooms and useful eaves storage. The setting is a particular highlight: a peaceful residential pocket of Jordanhill within easy reach of everyday amenities, transport links and the open green spaces of Victoria Park. With List 1 catchment for Jordanhill School and several respected independent schools nearby, this is an excellent option for fledging families. Accommodation • Entrance vestibule via an outer storm door. • Spacious reception hall with wooden flooring and stairway off. • Downstairs shower room with window to the front and a three piece white suite including a walk-in shower cubicle and an electric shower. • Main lounge with four section window to the front and focal point fireplace with living flame gas fire. • Dining room with two section window to the rear, focal point fire surround and wooden flooring. • Two generous hall cupboards and further understairs storage. • Superbly presented, fitted dining kitchen with two windows to the rear, storage units, worktops, appliances and door to the garden. • Broad stairway leading to the three quarter and upper landings with a beautiful, restored wooden banister. • Well presented shower room with three piece white suite and window to the rear. • Upper landing with storage cupboard off. • Bedroom one with two section window to the rear. • Bedroom two with window to the front. • Inner hallway with stairway to the upper floors. • Bedroom three (currently a sitting room/office) with four section bay window to the front. • Wooden stairway from first floor to upper floor. • Bedroom four with Velux window to the rear and useful eaves storage. • Bedroom five with two Velux windows to the rear. • Gas central heating. • Double glazing. • Private front garden with gate and hedging. • Beautifully presented back garden with two raised sun decks, a paved patio, mature planting and a substantial, recently built wooden garden shed. EPC: D Council Tax: G Tenure: Freehold

Reference: GWE250952

Request a viewing for this property

Simply fill out the form below or alternatively call us on 020 7839 0888

* Mandatory fields