3 Bedroom Upper Floor Flat
£245,000
Woodside, Glasgow

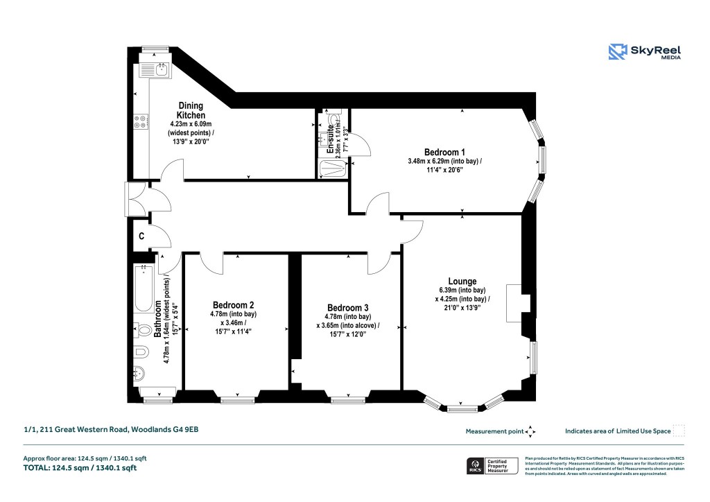
Floorplans For Woodside, Glasgow
EPC Graph for Woodside, Glasgow}

Description


Located within approximately 0.4 miles of University of Glasgow, this particularly spacious three-bedroom first-floor apartment with license for use as a four-bedroom HMO occupies a prime position in a handsome red sandstone tenement in the ever-popular Woodlands district of Glasgow’s West End. The location is especially attractive for professionals and students alike, with excellent public transport options and a vibrant local culture right on the doorstep. The nearby Charing Cross and Great Western Road corridors provide a superb mix of independent cafés, stylish boutiques, buzzing bars and excellent restaurants, contributing to a lively and highly sought-after neighbourhood atmosphere. The adjacent subway and bus services place the city centre within easy reach and the M8 motorway is accessed quickly for convenient regional commuting. For anyone who wishes to commute into the city centre for work or study, Kelvinbridge Underground is just along the road. The property itself is held within a well-maintained blonde sandstone tenement with secure entry and tidy common hallways. Accessed via the secure door to the first floor, the accommodation flows naturally and enjoys excellent natural light. Internally, it comprises a generous living room; three double bedrooms (including a master with en-suite bathroom); a modern, family-sized bathroom; and a fully fitted dining kitchen with quality appliances. Additional features include gas central heating, double-glazed windows, plush carpet flooring throughout and a secure door-entry system. The flat currently holds a four-bedroom HMO licence, offering flexibility for future use or re-configuration subject to approvals. Attributes • Particularly spacious three-bedroom first-floor apartment • Prime Woodlands location, approx. 0.4 miles to University of Glasgow • In the heart of Charing Cross / Great Western Road with cafés, boutiques, bars and restaurants • Excellent public transport links and fast access to the city centre • Well-kept blonde sandstone tenement with secure entry • Generous living room • Three double bedrooms including master with en-suite bathroom • Modern bathroom and fully fitted dining-sized kitchen with high-quality appliances • Gas central heating, double-glazing, plush carpet flooring throughout • Flexible four-bedroom HMO licence in place EPC: D Council Tax: E Tenure: Freehold

Reference: GWE250950

Request a viewing for this property

Simply fill out the form below or alternatively call us on 020 7839 0888

* Mandatory fields