2 Bedroom Flat
£235,000
Hillhead, Glasgow

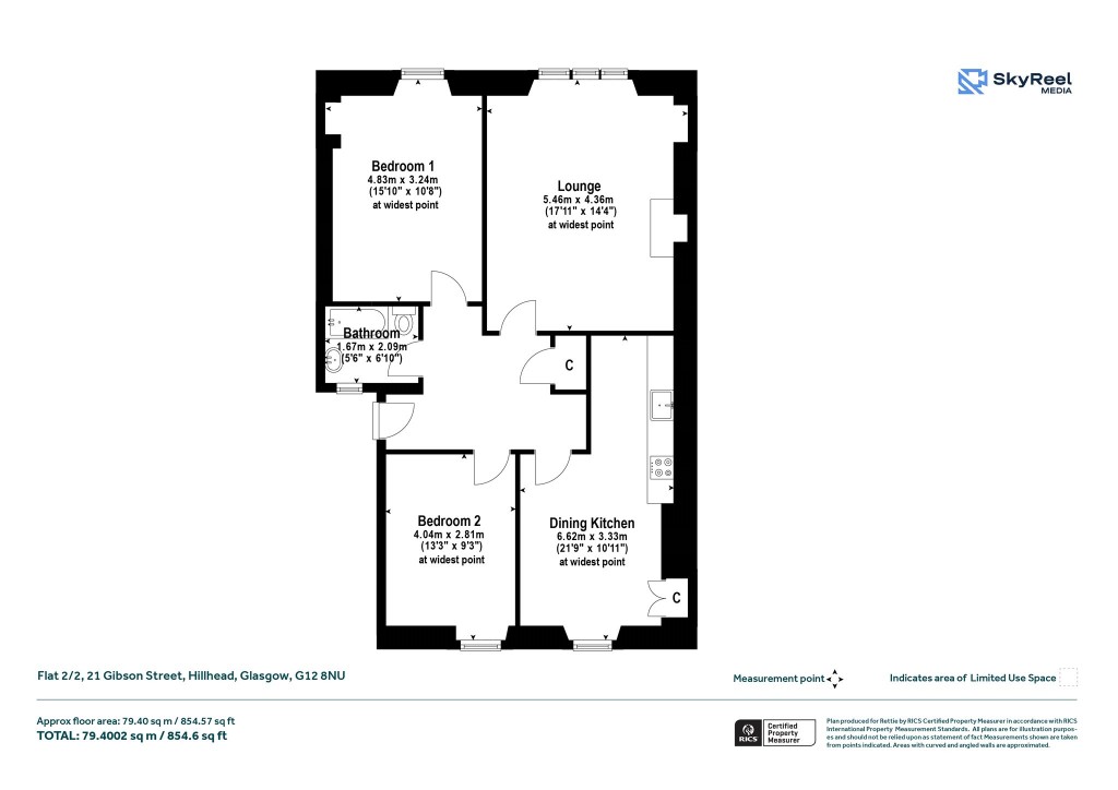
Floorplans For Hillhead, Glasgow
EPC Graph for Hillhead, Glasgow}

Description


CLOSING DATE TUESDAY 4TH NOVEMBER AT 11:00AM A particularly stylish and well-appointed two-bedroom second floor tenement apartment, located in the heart of Glasgow's West End. This charming home has been carefully upgraded and maintained by the current owners, offering exceptionally comfortable and peaceful living space—making it an ideal choice for anyone seeking well-proportioned accommodation within walking distance of Glasgow University and the vibrant array of amenities on offer in Hillhead and surrounding neighbourhoods. Situated in a superb central location, 21 Gibson Street offers immediate access to a fantastic selection of independent cafes, bars and restaurants. With renowned West End institution Stravaigin just across the road, and countless other celebrated eateries and coffee spots within a few seconds’ stroll, the lifestyle on offer here is one of true convenience. The proximity to Glasgow University is undoubtedly a key selling point—placing the property within one of the most desirable zones of the city for academics, students, professionals and anyone wishing to enjoy everything the West End has to offer. The apartment is also well located for quick access to major road networks and excellent public transport options, with bus links on Gibson Street and Kelvinbridge Underground Station nearby. The city centre is within comfortable walking or cycling distance, and the nearby Kelvin Way provides a direct link to Finnieston and its ever-growing collection of bars, restaurants, galleries and live music venues. Byres Road and the University Avenue campus are also just a short stroll away, meaning residents can enjoy a quiet home base with everything the West End has to offer right on the doorstep. The property is held within a traditional blonde sandstone tenement, which is maintained by an appointed factor. A secure door entry system gives access to a well-kept communal close and stairwell. To the rear of the building lies a particularly special feature—access to a beautifully landscaped shared residents’ garden known locally as the ‘GOW’ triangle. This generous outdoor space, developed through a community greenspace initiative, is a well-designed, secure and attractive retreat featuring landscaped borders, refuse & recycling facilities and seating areas, and is available to residents of Westbank Quadrant and the southern end of Otago Street. As shown in the accompanying photographs, HD video and Matterport tour, the apartment has been carefully renovated with thoughtful attention to detail and style. With high ceilings, quality floor coverings, tasteful fixtures and bright natural light throughout, this is one of the finest homes we have seen come to market on Gibson Street in recent times—and we anticipate strong interest. In summary, the accommodation extends to: welcoming entrance hallway with large walk-in storage cupboard, two generously proportioned king-sized bedrooms, a bright and comfortable living room, well-designed dining kitchen which maximises the L-shaped layout, and an internal bathroom complete with white suite, white tiling and shower-over-bath arrangement. From the carefully selected light fittings and beautifully laid flooring, to the stylish kitchen and bathroom upgrades—this property is a truly impressive example that must be viewed in person to be fully appreciated. Attributes • Beautifully upgraded two-bedroom second floor apartment • Located just seconds from Glasgow University & excellent local amenities • Quiet internal position within a traditional blonde sandstone tenement • Access to exceptional shared residents’ garden (GOW Triangle) • High-quality finishes throughout including flooring, light fittings and kitchen/bathroom fixtures • Well-maintained building with secure entry system • Generous king-size bedrooms and excellent in-flat storage • Spacious dining kitchen with clever layout and natural light • Situated within easy walking distance of Kelvinbridge Underground & major bus routes • Ideal home for academics, professionals, or anyone seeking a vibrant yet peaceful West End address EPC: C Council Tax: C Tenure: Freehold

Reference: GWE250945

Request a viewing for this property

Simply fill out the form below or alternatively call us on 020 7839 0888

* Mandatory fields