6 Bedroom Terraced House
£1,150,000
Dowanhill, Glasgow

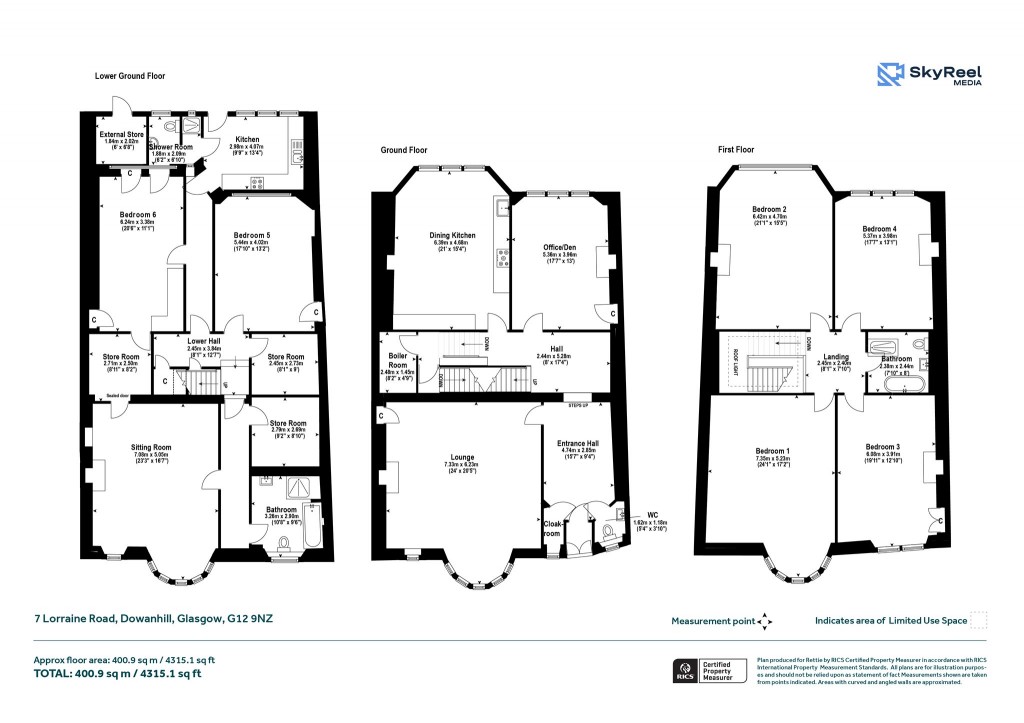
Floorplans For Dowanhill, Glasgow
EPC Graph for Dowanhill, Glasgow}

Description


This is an exceptionally rare opportunity to own a magnificent six-bedroom, three-reception traditional townhouse located in one of the most coveted and desirable pockets the West End has to offer. Designed in 1899 by the renowned architect David Barclay of H & D Barclay, this exquisite villa served as the precursor to the neighbouring serpentine Kensington Gate, assisting in establishing properties of this ilk as being among the finest the city has ever produced. Visitors are initially greeted by a distinguished baroque entranceway, which then gives way to a stupendous hallway crowned by an utterly sublime Art Nouveau stained-glass triptych. The stunning angelic central motif figure is echoed by personified side windows, with their flowing lines and jewel tones paying homage to the era’s fondness for Romanticism. These beautiful stained-glass finishes were designed and installed by the present owners. Beyond, the plethora of gorgeous embellishments and traditional features only continues, establishing this substantial home as a synthesis of period grandeur and comfort. We would finally highlight the supreme versatility offered by the property’s layout, with the lower ground portion able to serve as an entirely independent residence for elderly relatives, as guest accommodation, or even for adaptation to house a cinema, gymnasium, play area or provide space for hobbies. Lorraine Road, located just off Westbourne Gardens, is just a short stroll from The Botanical Gardens, Byres Road and the heart of Hyndland. Excellent educational establishments by way of The Glasgow Academy, The High School of Glasgow and Kelvinside Academy are a short commutable distance. The West End’s main thoroughfares and vibrant amenities are also within walking distance, with a mixture of transport links and supermarkets readily available, ensuring this all-encompassing property delivers on every level. Accommodation Ground Floor • Grand stone entrance stairway leading to wooden panelled entrance vestibule. • Alluring entrance hallway with imposing columns, artisanal stained glass triptych doorway, divine timber panelling, traditional focal fireplace, and step up to foyer landing framed by grand mirror. The gorgeous stained glass panelled doors conceal an invaluable entrance cloakroom and separate convenient W/C. • Front drawing room with refined timber panelling, original herringbone parquet flooring, focal fireplace, ornate cornice and spectacular south facing bow window complimented by an elegant Art Nouveau leaded-glass ocular side window. • Prodigious kitchen dining room with porcelain countertops, sleek white cabinetry, integrated appliances, gorgeous contemporary recessed log burning stove, antique pantry shelving and triple section window to the rear. • Large office/den with focal fireplace, ornate cornice, triple section window to the rear and integrated shelving. • Stairway from hallway graced by traditional balustrade, large skylight, and leading to the upper landing. First Floor • Principal (main) bedroom with tremendous bow window, south facing aspect, traditional wooden flooring and original ceiling cornice. • Bedroom two is also of superb proportions, with four section window to the rear, detailed ceiling cornice, focal fireplace and hardwood flooring. • Bedroom three is a great size with double section window to the front. • Bedroom four is also a sizable double bedroom with three section window to the rear. • Four piece family bathroom with contemporary shower cubicle, curved luxury bath, large focal mirror, skylight and electric underfloor heating. Lower Ground • Stairway to lower level with boiler room located on the half landing. • Lower level hallway with two brilliantly sized storage cupboards off. • Second reception room currently being utilised as a cosy sitting room, with beautiful bow window, additional sash and case window, focal gas fireplace. • Four piece bathroom with separate shower and window to the front with plantation shutters. • Bedroom five with raised triple section window. • Bedroom six has access to another superb storeroom and en suite. • Three piece en suite shower room with window to the rear. • Fitted second kitchen with three windows to the rear and space for dining and door to garden. Additional • Wondrous private garden with curved lawn, fetching cobblestone pathway and flower beds with mature planting. • Gas central heating. • Availability of on street resident’s parking. EPC: E Council Tax: G Tenure: Freehold

Reference: GWE250922

Request a viewing for this property

Simply fill out the form below or alternatively call us on 020 7839 0888

* Mandatory fields