1 Bedroom First Floor Flat
£145,000
North Kelvinside, Glasgow

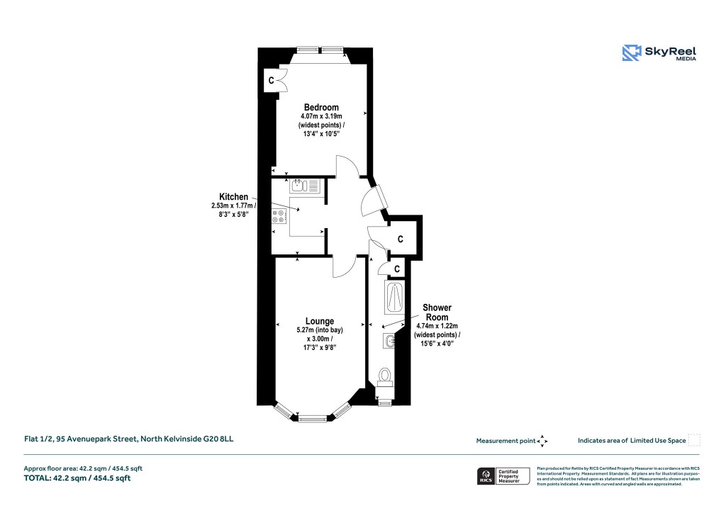
Floorplans For North Kelvinside, Glasgow
EPC Graph for North Kelvinside, Glasgow}

Description


An immaculately presented one bedroom apartment occupying the prominent first floor position within an attractive sandstone tenement building, peacefully positioned in a quiet corner of the North Kelvinside area. The accommodation is bright and comfortable throughout, having been well maintained and tastefully refreshed in recent years. A spacious bay windowed lounge with room for dining forms the main public space and offers an alluring setting for everyday living and entertaining, while a separate modern kitchen replete with integrated appliances is accessible from the reception hall. The bedroom is well proportioned, with integrated wardrobe storage and a bright aspect granted from a double section window. A nicely appointed shower room completes the accommodation, presented in excellent order and enhanced by tasteful textured tiling. Avenuepark Street is very well placed to make the most of the wide array of cafes, boutiques and shops available on Queen Margaret Drive and beyond. A short walk leads you to the stunning Botanic gardens and the Children’s Wood & North Kelvin meadow, while riverside paths along the Kelvin offer miles of walking and cycling. The Kelbourne Park School is situated just moments away, with exceptional convenience and a peaceful location rounding off a brilliant opportunity in a fantastic West End setting, sure to appeal to first time buyers, professionals and those associated with the University of Glasgow. Accommodation • Secure entry to communal close. • Inviting reception hall with invaluable utility/storage cupboard off. • Naturally bright lounge with west facing three section bay window, granting pleasant views towards Kelbourne Park school, the room is nicely decorated with pendant lighting and traditional centre rose. • Separate kitchen with range of contemporary base and wall units, ceramic sink and tiled backsplash, with integrated oven, hob, fridge freezer, microwave, dishwasher and beverage cooler. • Bedroom one of double proportions with integrated wardrobes and two section window to the rear above window seat, with cupboard “neuk” storage below. • Wildly appealing three piece modern shower room, with self-illuminating mirror, window to the rear and surprisingly accommodating shelved storage cupboard. • Gas central heating. • Double glazing. • Shared garden to the rear of the building. • Availability of on street residents’ parking permit. EPC: C Council Tax: B Tenure: Freehold

Reference: GWE250921

Request a viewing for this property

Simply fill out the form below or alternatively call us on 020 7839 0888

* Mandatory fields