3 Bedroom Terraced House
£299,000
Jordanhill, Glasgow

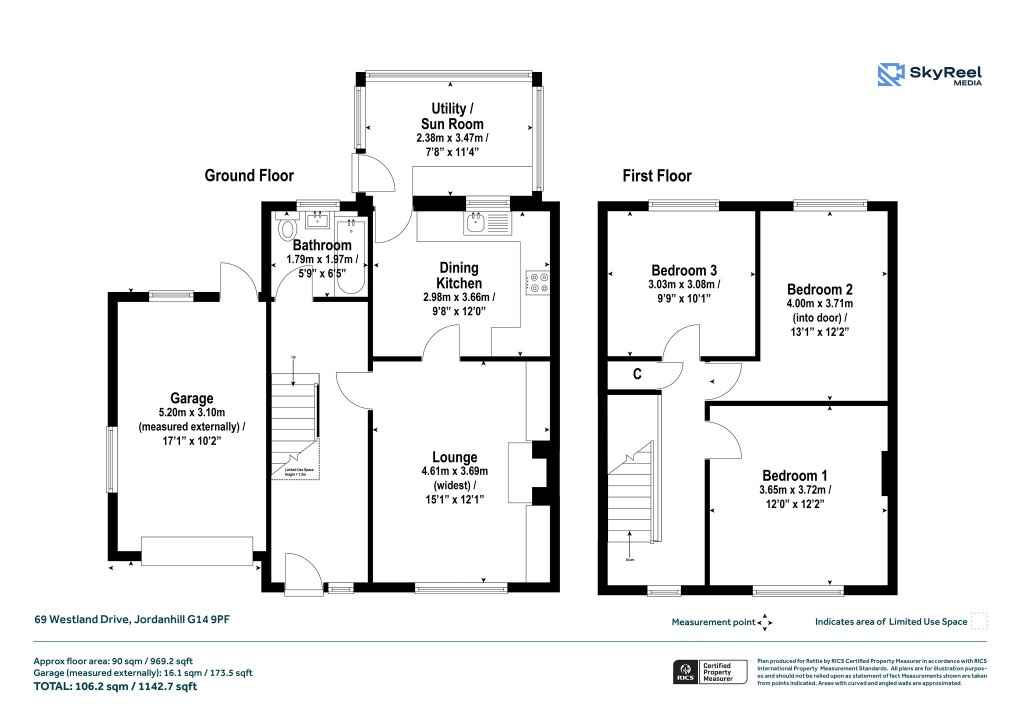
Floorplans For Jordanhill, Glasgow
EPC Graph for Jordanhill, Glasgow}

Description


CLOSING DATE TUESDAY 2 ND DECEMBER AT 2PM. Positioned on a highly sought-after street within the Jordanhill school catchment area (list 1) and enjoying one of the most substantial and developable plots in the area, this three-bedroom end-terrace villa at 69 Westland Drive, offers superb, unlocked potential for a substantial gable-end or wrap around extension that could more than double the existing foot print. The property is set on Westland Drive, and backs directly on to mature woodland that lines the edge of the local nature trail winding towards Victoria Park (which is immediately adjacent to Westland Drive) meaning the home enjoys a completely un-overlooked, highly private setting. The plot is genuinely impressive: to the front there is a broad mono-bloc paved driveway, accommodating at least three family-sized vehicles, leading to the linked garage. The wide frontage then wraps round past the gable end and leads into a fantastic lawned rear garden which must be seen to be fully appreciated. Whether you are a growing family looking to extend over time to meet your evolving needs; love to host big barbecues with the badminton net up; or are simply a keen horticulturalist yearning for a poly¬tunnel, miniature orchard or productive kitchen garden — the garden here offers the space to deliver. Externally the house is presented in a two-tone roughcast beneath a pitched and tiled roof. Double-glazed windows have been fitted throughout the main body of the house and a lean-to garden room sits at the rear, opening out into the sizeable lawned garden. Internally the accommodation is of good proportions and offers family living over two levels. In brief: entrance hall with staircase rising to the upper level; front-facing living room; kitchen with space to dine and a door leading through to the rear garden room and out into the garden; downstairs main bathroom with three-piece suite; and on the upper level three comfortable bedrooms (two double and one single-sized room). The attached photographs, HD video and floorplan will give you a strong idea of the overall size, style and specification of the interior living space. Given the unlocked potential this property offers, within the catchment area for Scotland’s highest-performing publicly funded schools, growing families are encouraged to view this gem at the earliest opportunity. Westland Drive is positioned just a few minutes’ walk from the main entrance to Victoria Park — this makes the home a lovely choice for anyone with children or dogs who is keen to have regular, easy access to beautiful inner-city parkland surrounded by woodland. Despite its peaceful setting, Westland Drive is also perfectly placed for quick access to the Clydeside Expressway and the Clyde Tunnel which link with the M8 and M74 motorways — ideal for commuting or travel further afield. Jordanhill is best known for its local primary and secondary schools, which currently hold the accolade of being Scotland’s highest performing, non-fee-paying schools. Westland Drive is also well-placed for accessing local amenities — stylish coffee shops, restaurants and boutiques are within walking distance in nearby Broomhill. Anniesland is a short car journey away and offers everything from a Morrisons supermarket and Costa Coffee to a selection of leisure facilities and excellent transport links. Jordanhill also has its own rail station, providing regular services to Glasgow city centre. Attributes • Three-bedroom end-terrace villa which offers fantastic potential. • An unusually large sized plot for the area, providing an extremely rare opportunity for extension/development potential (gable-end extension possible to double floor area) • Situated in the highly desirable Jordanhill school catchment • Backing on to mature woodland at the edge of the nature trail towards Victoria Park — completely un-overlooked and very private • Broad mono-bloc paved driveway to front with space for at least three family cars plus linked garage • Large lawned rear garden ideal for families, barbecues, horticulture, outdoor leisure • Two-tone roughcast exterior, pitched & tiled roof, double-glazed windows, rear lean-to garden room • Accommodation over two levels: entrance hall, front living room, kitchen/dining, garden room, three-piece bathroom on ground floor; three bedrooms (two doubles, one single) upstairs • Minutes’ walk to Victoria Park — excellent for children, dogs, outdoor living • Easy access to Clydeside Expressway, Clyde Tunnel, M8/M74, and Glasgow Airport for commuting and travel • Local amenities including cafés, restaurants, boutiques in Broomhill; supermarket, leisure facilities and rail station in Anniesland EPC: D Council Tax: E Tenure: Freehold

Reference: GWE250917

Request a viewing for this property

Simply fill out the form below or alternatively call us on 020 7839 0888

* Mandatory fields