1 Bedroom Upper Floor Flat
£185,000
Clevden, Glasgow

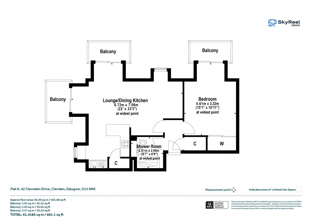
Floorplans For Clevden, Glasgow
EPC Graph for Clevden, Glasgow}

Description


An immediately impressive and rarely available one bedroom apartment forming part of a modern block of apartments on the corner of Cleveden Drive and Beaconsfield Road in the highly desirable Kelvinside District. The property is situated in a quiet residential pocket within the West End yet is exceptionally well placed for an enviable selection of local amenities found on Hyndland Road, Clarence Drive and Byres Road together with excellent transport links and easy access to The University of Glasgow and The Botanic Gardens. The accommodation is immaculately presented, benefits from excellent natural light and includes a fabulous main living/dining room with fabulous views as far as the Kilpatrick Hills. In addition, there is an open plan kitchen, a spacious double bedroom with fitted wardrobes and balcony together with a modern three-piece shower room off the reception hall. We would also highlight the significant advantage of off-street parking. Accommodation: • Security entry system • Communal entrance hall • Welcoming reception hall with useful storage cupboard off • Outstanding main lounge/dining room with window to the rear, access to rear facing balcony and access to separate, side facing balcony • Open plan kitchen complete with a range of base and wall units, appliances and window to the side • Generous double bedroom with sliding doors to private balcony and fitted mirrored wardrobes • Modern three-piece shower room • Gas central heating • Double glazing • Off street residents’ parking • Well maintained communal garden grounds

Reference: GWE250906

Request a viewing for this property

Simply fill out the form below or alternatively call us on 020 7839 0888

* Mandatory fields