2 Bedroom Ground Floor Flat
£195,000
Partick, Glasgow

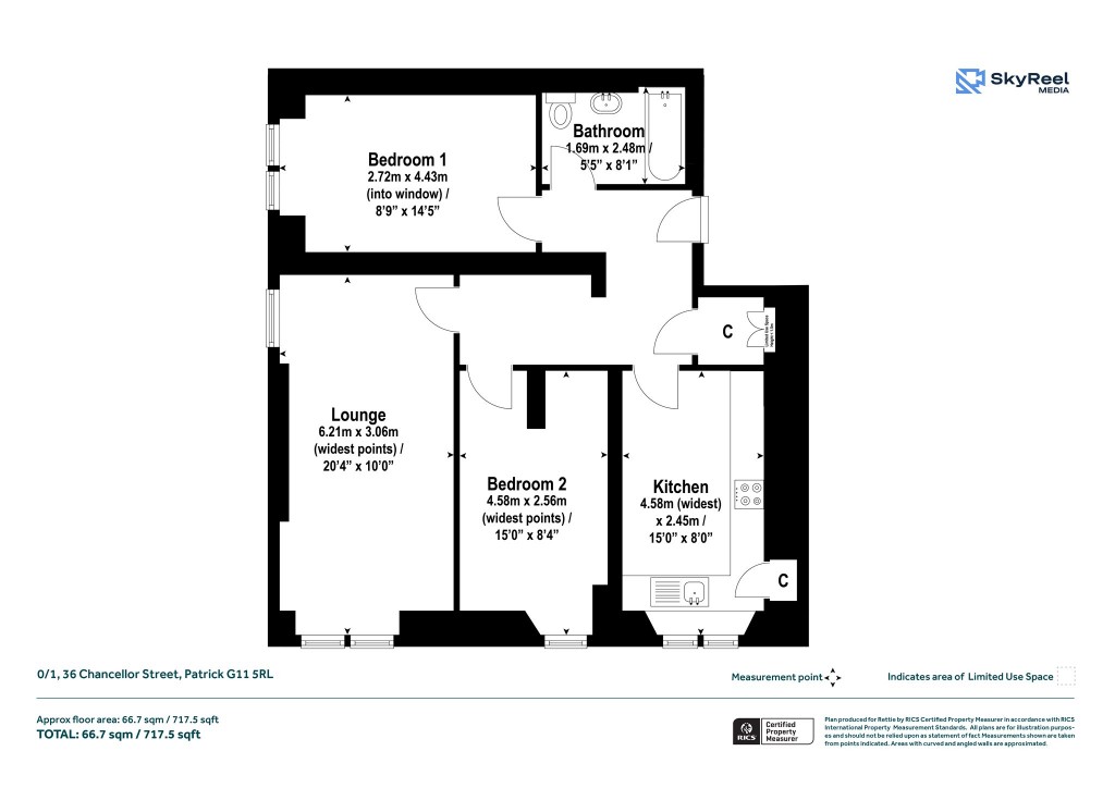
Floorplans For Partick, Glasgow
EPC Graph for Partick, Glasgow}

Description


Enjoying an elevated ground floor position within a traditional West End tenement on a notably quiet street, this highly appealing two bedroom property offers the convenience of ground floor living, enhanced by a slightly more discreet elevated aspect, while maintaining enviable proximity to the very best of the West End. The apartment is bright and comfortably proportioned, with the dual-aspect living room serving as very much the centrepiece of the accommodation; a corner window draws in excellent natural light and frames a pleasant southerly outlook across Dowanhill Street. The reception hall facilitates excellent flow and keeps the principal bedroom nicely set apart from the main living spaces. The kitchen is separate and well fitted, with room for everyday dining, while to the rear there is access to a shared court, with Mansfield Park sitting just around the corner. Chancellor Street is a wonderfully peaceful address in the heart of Partick, yet remains just seconds from the energy and convenience of Byres Road and Dumbarton Road, with an excellent variety of cafés, bars and restaurants offering an enticing mix of cuisines. The University of Glasgow is close at hand, and Notre Dame Primary School on Havelock Street is also within easy reach. Public transport is superb, with regular bus services nearby and the Glasgow Subway readily accessible via Kelvinhall and Partick stations, while road links are equally strong, including swift cross-city access via the Clyde Tunnel. The City Centre is therefore easily reached, as are Kelvingrove Park and the renowned Kelvingrove Art Gallery and Museum. Accommodation: • Communal entrance close to elevated ground floor position. • Entrance vestibule leading into an inviting reception hall with storage off. • Bright dual aspect living room with southerly aspect from prominent corner position. • Separate fitted kitchen with space for dining and two section window to the front. • Main bedroom with two section window to the side. • Bedroom two is also of double proportions with recess suitable for a wardrobe or desk, with single section window to the front. • Internal three piece bathroom with shower over bath and vanity storage mirror. • Shared rear courtyard. • Double glazing. • Gas central heating. • Availability of on street resident’s parking. EPC: C Council Tax: C Tenure: Freehold

Reference: GWE250905

Request a viewing for this property

Simply fill out the form below or alternatively call us on 020 7839 0888

* Mandatory fields