2 Bedroom Upper Floor Flat
£165,000
North Kelvinside, Glasgow

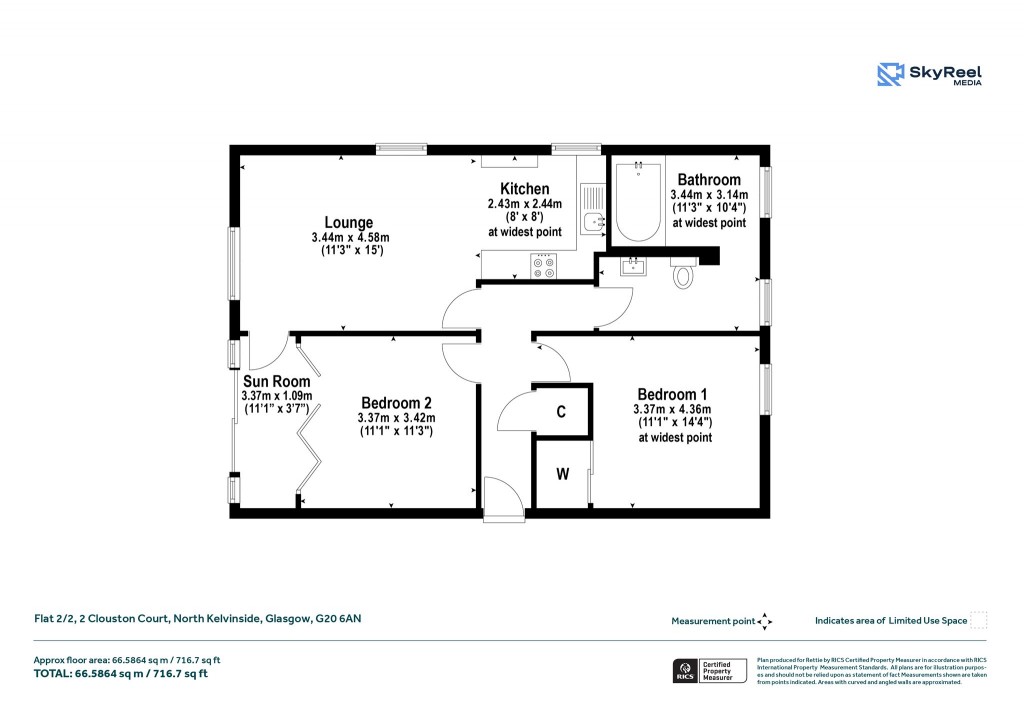
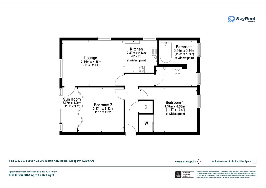
Floorplans For North Kelvinside, Glasgow
EPC Graph for North Kelvinside, Glasgow}

Description


CLOSING DATE THURSDAY 16TH OCTOBER AT 11 AM Quite simply, one of the finest modern two bedroom apartments available of its kind, located in a quiet pocket just off The Queen Margaret Bridge in North Kelvinside. This second floor property boasts a show stopping set of bifold doors, that creates an entire “wall to wall” window, with the ability to peel back to allow the outdoors inside. Thoughtfully transformed by the current owner, this apartment has been reconfigured to an impressive degree. A contemporary fitted kitchen, open to a bright living area provides a great space for family life, entertaining and unwinding, with direct access to a lovely south facing balcony. The undeniable highlight of this property is the bi-fold doors, that adorn the entire wall of the second bedroom and open fully, enabling the possibility of intertwining this indoor space with a superb balcony; which presents a unique, flexible zone for working, relaxing or alfresco lounging and formal dining. The original kitchen has been amalgamated with the bathroom, vastly optimising the space and resulting in a timeless luxury three piece suite with mid-tone slate tiling and undefloor heating. The remainder of the accommodation is comprised of a main double bedroom with integrated wardrobes and a useful storage cupboard accessed from the hallway. The communal gardens have been nicely landscaped, and offer a tranquil refuge from the hustle and bustle of the West End. Clouston Court is well placed to take advantage of the wide array of cafes, boutiques and shops on Queen Margaret Drive and beyond. A short walk leads you to the stunning Botanic gardens and discreet Children’s Wood & North Kelvin meadow, while riverside paths along the Kelvin offer miles of walking and cycling. Exceptional convenience and a peaceful location round off a superb opportunity in a fantastic West End setting. Accommodation • Secure communal entrance. • Inviting hallway with storage off. • Beautiful front lounge with dual aspect windows and door leading to balcony. • Open to a gorgeous fitted kitchen with integrated appliances, window to the side, dining space and custom storage cabinets. • Principal (main) bedroom with integrated wardrobes and window to the rear. • Second bedroom with tailored “wall to wall” bi-folding doors, opening to a spectacular south-facing balcony. • Spacious three piece “U” shaped bathroom, with contemporary grey tiling, shower over bath, heated towel rail, gas boiler, underfloor heating and twin windows. • Landscaped communal gardens. • Communal drying area. • Availability of residents’ on street permit parking. • Alternations completed with relevant necessary consents. EPC: C Council Tax: C Tenure: Freehold

Reference: GWE250890

Request a viewing for this property

Simply fill out the form below or alternatively call us on 020 7839 0888

* Mandatory fields