1 Bedroom Upper Floor with Lift Flat
£135,000
Partick, Glasgow

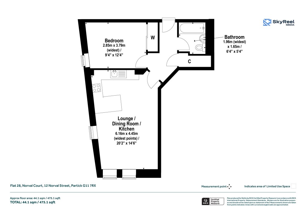
Floorplans For Partick, Glasgow
EPC Graph for Partick, Glasgow}

Description


A stylish and freshly presented one-bedroom apartment, positioned within the popular Norval Court development in the heart of Partick. Situated on the top floor with lift access, this home benefits from access from the building’s bright central Atrium foyer and offers a peaceful yet convenient West End setting. The property has been thoughtfully upgraded throughout, offering contemporary interiors, a smart open-plan layout, and excellent natural light thanks to the dual aspect, and west facing double windows in the lounge. The living space is bright and inviting, open to a fitted kitchen which features sleek white gloss units, contrasting grey worktops, metallic splashback, and a breakfast bar ideal for relaxed dining or entertaining. The spacious double bedroom enjoys a bright aspect and comes complete with new carpeting and a built-in mirrored wardrobe. The modern bathroom has been recently refitted with a clean, tiled finish and includes a white three-piece suite with electric shower over the bath. Further features include newly installed electric radiators and immersion water heating, new flooring throughout, and double glazing. The building offers secure entry, lift access to all levels, and showcases Norval Court’s signature internal atrium, a bright and welcoming communal space that adds both light and character. This attractive property will suit a range of buyers from first-time purchasers to investors or those looking to downsize to a low-maintenance, move-in-ready home. Ideally positioned for the many amenities of Partick and the wider West End, Norval Street is just moments from Dumbarton Road, Crow Road, and Byres Road, and within easy reach of transport links including Partick Station, the Clydeside Expressway, and the Clyde Tunnel. Accommodation • Secure door entry system. • Well-maintained communal atrium and stairwell. • Elevator to all levels. • Reception hall with useful storage cupboard. • Lounge/dining room with large double window, and second window offering a bright outlook. • Contemporary open-plan kitchen with oven, hob, extractor, freestanding washing machine and fridge. • Double bedroom with side-facing window and fitted mirrored wardrobe. • Modern bathroom with white suite and electric shower over bath. • Electric heating. • On-street parking. EPC: D Council Tax: C Tenure: Freehold

Reference: GWE250886

Request a viewing for this property

Simply fill out the form below or alternatively call us on 020 7839 0888

* Mandatory fields