1 Bedroom Ground Floor Flat
£115,000
Anniesland, Glasgow

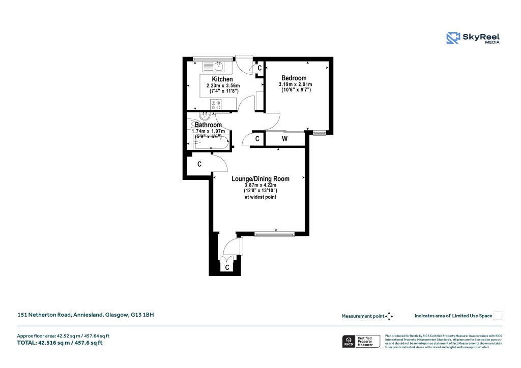
Floorplans For Anniesland, Glasgow
EPC Graph for Anniesland, Glasgow}

Description


A charming and well-presented one-bedroom apartment offering generous living space, modern comforts and a fantastic location. This appealing home benefits excellent natural light and is presented in walk in condition to includes a superb main lounge/dining room, a separate kitchen that provides direct access to the private rear garden, a double bedroom and a three-piece bathroom. Additional features include ample storage including storage off the lounge/dining room, the inner hall and fitted wardrobes in the bedroom. We would also highlight the added bonus of a private rear garden together with off street parking within the residents’ car park. The property enjoys a sought-after location with excellent local amenities nearby. Netherton Road is well placed for everyday essentials, with a variety of local shops, cafés and supermarkets within easy reach. The area is served by reliable public transport links, and commuters will appreciate the straightforward access to major road routes. There are also attractive green spaces, leisure facilities and well-regarded schools in the surrounding neighbourhood, contributing to a vibrant and welcoming community atmosphere. Accommodation: • Private entrance vestibule with storage cupboard off • Bright and spacious lounge/dining room with window to the front and useful storage cupboard off • Inner hall with storage cupboard off • Kitchen complete with a range of base and wall units, appliances, window to the rear and direct access to the rear garden • Generous double bedroom with window to the front and fitted wardrobes • Three-piece bathroom comprising bath, over bath shower, toilet and wash hand basin • Gas central heating • Double glazing • Private rear garden • Off street parking EPC: C Council Tax: C Tenure: Freehold

Reference: GWE250880

Request a viewing for this property

Simply fill out the form below or alternatively call us on 020 7839 0888

* Mandatory fields