3 Bedroom Terraced House
£309,000
Jordanhill, Glasgow

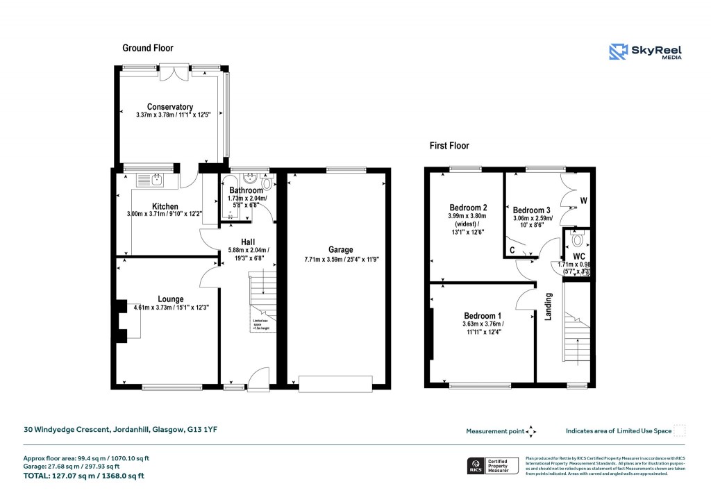
Floorplans For Jordanhill, Glasgow
EPC Graph for Jordanhill, Glasgow}

Description


Tucked away in a peaceful and highly sought-after crescent, this three-bedroom end-terrace villa offers surprisingly substantial accommodation over two levels,and enjoys the advantage of being within the list 1 catchment for Jordanhill School – one of the most coveted catchment areas in the city. Set upon one of the broadest plots in this lovely pocket of Jordanhill, the property benefits from an extremely broad drive-in/drive-out driveway, a linked garage with inspection pit, and lovely enclosed rear garden laid to lawn – creating an ideal setting for families. The location is superb. Windyedge Crescent combines a sense of quiet seclusion with excellent convenience. Families will be drawn by the Jordanhill School catchment, while the property also appeals to a broad range of buyers – from downsizers in search of a manageable home with private garden, to healthcare professionals working at the Queen Elizabeth University Hospital or Gartnavel General Hospital, both of which are within easy reach. For those who commute across the central belt, the proximity of major road networks, including the Clyde Tunnel and Clydeside Expressway, provides excellent connectivity. The home for sale has been lovingly maintained by the current owner over many years, with thoughtful upgrades including a re-roof with concrete tiling and the installation of modern double-glazed windows. That said, the interior would benefit from some upgrading and modernisation. Behind its modest frontage lies a comfortable and versatile interior, well-proportioned across both floors. The property has also been enhanced by a rear extension, which has added a bright garden room and increased flexibility to the living space. In terms of layout, the accommodation extends to: broad reception hallway with staircase to the upper level; front-facing living room; fitted kitchen with wall and base units and space to dine; and a rear-facing garden room, which could potentially be opened through to the kitchen to form a large dining kitchen (subject to the necessary consents). The upper floor provides three comfortable bedrooms – two excellent doubles and one generous single – along with a well-appointed family bathroom with white suite. Attributes • Situated within list 1 Jordanhill School catchment – one of Glasgow’s most sought-after addresses • Peaceful crescent setting on one of the broadest plots in this pocket of Jordanhill • Drive-in/drive-out driveway with excellent off-street parking • Linked garage with inspection pit • Enclosed family garden laid to lawn • Extended at the rear with a versatile garden room • Well-proportioned three-bedroom accommodation over two levels • Two excellent double bedrooms and a generous single bedroom • Modern double-glazed windows and high-performance re-roofing • Convenient for Queen Elizabeth University Hospital and Gartnavel General Hospital • Excellent road links via the Clyde Tunnel and Clydeside Expressway EPC: E Council Tax: E Tenure: Freehold

Reference: GWE250874

Request a viewing for this property

Simply fill out the form below or alternatively call us on 020 7839 0888

* Mandatory fields