1 Bedroom Upper Floor Flat
£99,000
Thornwood, Glasgow

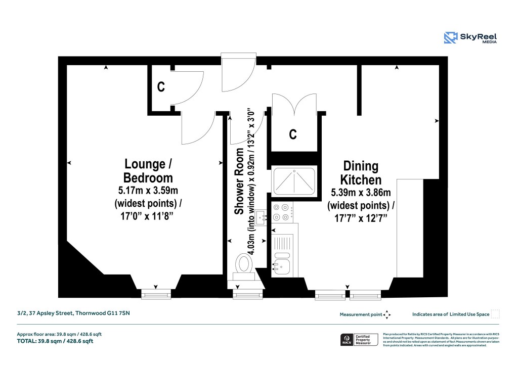
Floorplans For Thornwood, Glasgow
EPC Graph for Thornwood, Glasgow}

Description


This naturally bright one bedroom flat occupies a prominent top floor position within a traditional red sandstone tenement building in the highly popular and incredibly convenient Thornwood district. The internal accommodation enjoys excellent natural light and has attractive flooring flowing from the hallway into a well decorated lounge/bedroom. A particular highlight is the generous dining kitchen, with ample dining space, fitted cabinetry and a bright double windowed open outlook. 37 Apsley Street is exceptionally well placed to take advantage of an enviable selection of amenities on Dumbarton Road and Crow Road, including Crow Road Retail Park, together with proximity to Partick Train and Underground Station, excellent bus links and easy access to The University of Glasgow. Accommodation: • Security entry system. • Communal entrance close. • Reception hallway with two storage cupboards off. • Bright double bedroom /lounge with window to the front. • Spacious dining kitchen with a range of units and ample room for dining. • Shower room comprised of three piece suite. • Gas central heating. • Double glazing. EPC: C Council Tax: B Tenure: Freehold

Reference: GWE250872

Request a viewing for this property

Simply fill out the form below or alternatively call us on 020 7839 0888

* Mandatory fields