1 Bedroom Ground Floor Flat
£139,000
Thornwood, Glasgow

Floorplans For Thornwood, Glasgow

Description


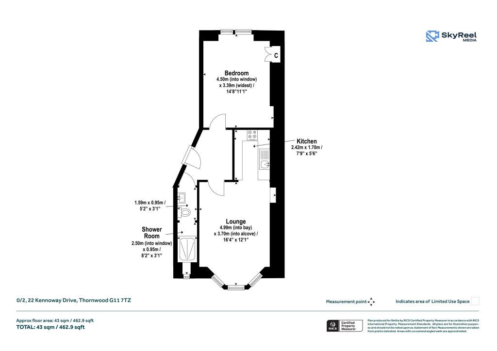
CLOSING DATE FRIDAY 3TH OCTOBER AT 2PM This exceptional one-bedroom flat occupies an elevated ground floor position within a traditional red sandstone tenement building and is located in the highly popular and convenient Thornwood district. 22 Kennoway Drive is exceptionally well placed to take advantage of an enviable selection of amenities on Dumbarton Road and Crow Road including Crow Road Retail Park. In addition, there is easy access to excellent transport links, The University of Glasgow, Kelvingrove Park and The Botanic Gardens. The internal accommodation has been comprehensively upgraded and finished to an exacting standard, benefits from excellent natural light due to its south facing frontage and has a comfortable feel. Notable highlights include a superb bay windowed lounge/dining room, a stunning open plan kitchen, a generously proportioned double bedroom and a stylish three-piece shower room. Accommodation: • Security entry system • Communal entrance close • Welcoming reception hall with sanded/varnished flooring • Impressive lounge/dining room with three bay window, focal point fireplace and ceiling cornice • Impressive open plan kitchen complete with a range of base and wall units and integrated appliances • Generous double bedroom with two section window to the rear • Stylish three-piece shower room. Window to the front • Gas central heating • Double glazing • Private front garden • Shared garden to the rear of the building EPC: D Council Tax: B Tenure: Freehold

Reference: GWE250863

Request a viewing for this property

Simply fill out the form below or alternatively call us on 020 7839 0888

* Mandatory fields