Description
##CLOSING DATE MONDAY 10TH NOVEMBER AT 2PM##
Located in the heart of one of Glasgow’s most vibrant and sought-after areas, this one-bedroom ground floor flat is ideal for first-time buyers, professionals, or investors seeking a conveniently situated home.
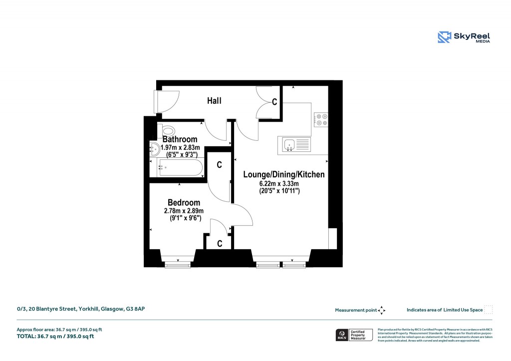
The accommodation includes a bright main living/dining room an open-plan kitchen, a bedroom, accessed from the living/dining room and a three-piece bathroom off the reception hall.
Blantyre Street enjoys an excellent location within Glasgow’s Yorkhill district, an area renowned for its vibrant mix of cafés, bars, restaurants, and independent shops. Nearby Argyle Street and Kelvingrove Park are just a short stroll away, offering both lively city living and green open spaces. The property is also conveniently positioned for access to Glasgow City Centre, the West End, and major transport links including Exhibition Centre train station and local bus routes. The nearby Clyde Walkway provides scenic riverside walks and cycling paths, while Glasgow University and Kelvingrove Art Gallery & Museum are within easy reach.
Accommodation:
• Security entry system
• Communal entrance close
• Reception hall
• Living/dining room with two section window to the front
• Open plan kitchen complete with a range of base and wall units and appliances
• Bedroom off the living/dining room with window to the front, storage cupboard off and additional overhead storage
• Three-piece bathroom comprising bath, over bath shower, toilet and wash hand basin
• Gas central heating
• Double glazing
• Availability of on street residents parking permit
EPC: C
Council Tax: A
Tenure: Freehold