2 Bedroom House
£219,000
Kelvingrove, Glasgow

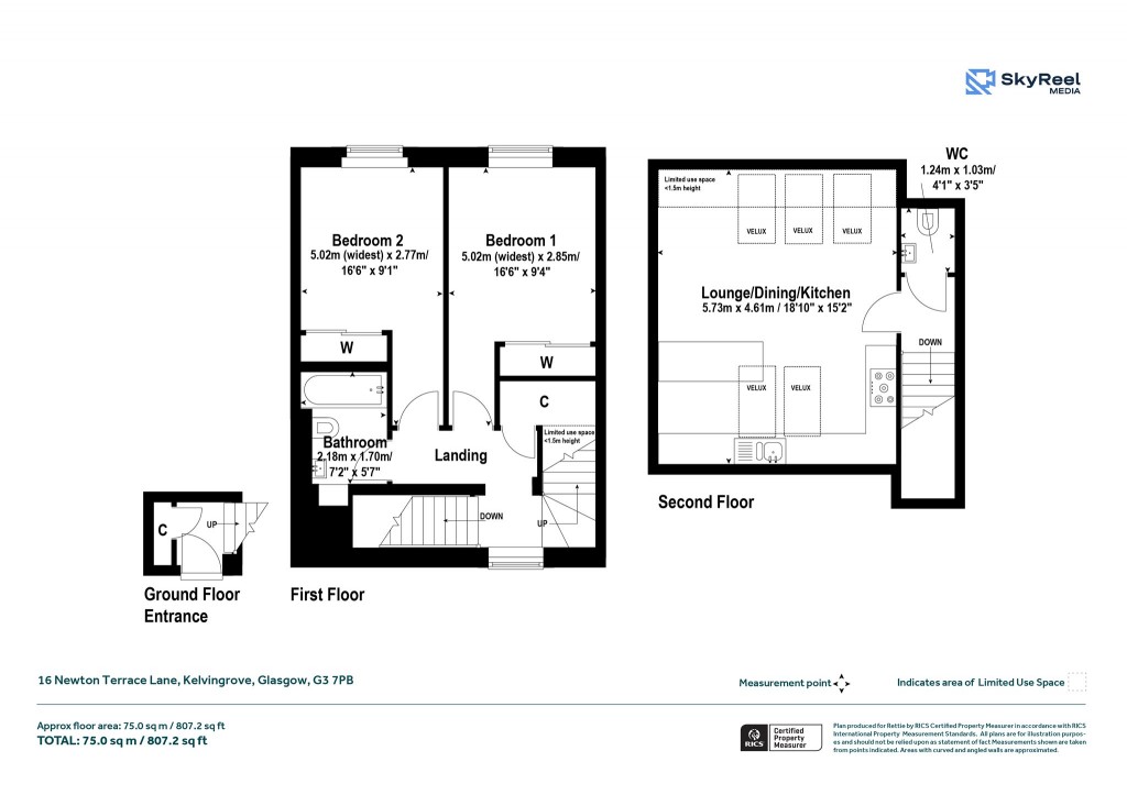
Floorplans For Kelvingrove, Glasgow
EPC Graph for Kelvingrove, Glasgow}

Description


CLOSING DATE THURSDAY 2ND OCTOBER AT 11:00AM A beautifully appointed two-bedroom main door mews that offers peaceful and comfortable contemporary living space over two levels, benefiting from an extremely central situation in the West End of Glasgow—just a few minutes’ walk from the bustling city centre . It is perfectly placed for rapid access to numerous amenities, major road networks, and key Glasgow attractions including The Hydro. The home for sale boasts a highly central position in the Sandyford district of the West End, just a few hundred metres east of Finnieston, near Charing Cross. This location offers optimal convenience, with Newton Terrace Lane within easy walking distance of amenities in both the West End and the city centre. It's ideal for professionals working in the city centre who prefer to walk or cycle to work, while still enjoying a private and particularly peaceful home setting. The property is also well-positioned for anyone commuting across West Central Scotland by car, being less than five minutes from access points to the M8 motorway. While Newton Terrace Lane is a quirky, urban location, it's also conveniently close to Kelvingrove Park—one of Glasgow’s finest inner-city green spaces—featuring playing fields, open lawns, flower beds, statues, a skate park, and a world-famous bandstand. Another major advantage of this lovely mews is its proximity to Glasgow University, The School of Art, and Glasgow Caledonian University. The property is a stylish, contemporary mews home held within an elegant modern semi-detached building on the north side of Newton Terrace Lane, facing south. Externally, the building is immediately impressive, featuring blonde sandstone facings, crisp white render, and contrasting grey-coloured doors and window frames—all set beneath a pitched and tiled roof. Entry is via a heavy grey security door into an entrance pend, which leads to the rear of the building where the main door is located. Within the pend, there's a large private storage cupboard—perfect for bicycles, sports gear, or outdoor furniture. The property is accessed via a patio area—creating a lovely outdoor seating space, enjoyed by the current owners on summer evenings. The main door opens to an entrance vestibule with space for coats and shoes. A staircase leads to the first floor, where the accommodation begins. This level includes two comfortable double bedrooms, both with in-built wardrobes, and a large understairs cupboard housing the boiler—providing excellent built-in storage. A neatly presented main bathroom with a shower over the bath completes this level. A further staircase leads to the upper floor, where a landing provides access to a guest WC. To the left is a superb open-plan kitchen, living, and dining room with a vaulted ceiling and Velux windows—truly the heart of this gorgeous mews. The kitchen has recently been re-fitted to a high specification, featuring extensive worktop space, integrated appliances, and a large breakfast bar—ideal for informal dining or working from home. The living area comfortably fits an L-shaped sofa and still offers space for a six-seater dining table. The owners of the home for sale have also acquired a separate private car parking space within Newton Terrace Lane, which has its own title. The owners would consider selling this car parking space by separate negotiation and first refusal will be offered to the successful buyer ________________________________________ Attributes • Prime West End location just minutes from Glasgow city centre and Finnieston • Exceptionally peaceful setting in a quiet mews lane despite central position • Two double bedrooms, both with built-in wardrobes • Stylish, modern design within an elegant semi-detached building • Beautifully re-fitted kitchen with integrated appliances and breakfast bar • Spacious open-plan living area with vaulted ceiling and Velux windows • Two bathrooms: main bathroom with shower over bath + separate guest WC • Excellent storage including large private outdoor cupboard and understairs store • Outdoor patio—ideal for evening relaxation or alfresco dining • Perfect for commuters: less than 5 minutes to M8 access points • Short walk to key attractions including The Hydro, Kelvingrove Park, and universities • Ideal for professionals wanting walk/cycle access to city centre workplaces EPC: C Council Tax: D Tenure: Freehold

Reference: GWE250850

Request a viewing for this property

Simply fill out the form below or alternatively call us on 020 7839 0888

* Mandatory fields