2 Bedroom Penthouse Flat
£309,000
Woodlands, Glasgow

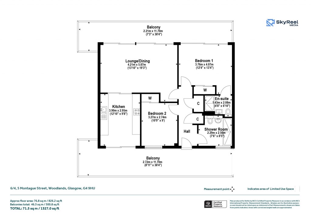
Floorplans For Woodlands, Glasgow
EPC Graph for Woodlands, Glasgow}

Description


Occupying a prominent top floor position of an impressive modern building on the corner of Montague Street and Great Western Road, this outstanding and rarely available two-bedroom penthouse apartment offers a superb blend of space, light and elevated city living. Presented in excellent order throughout, the property enjoys outstanding natural light and comfortable, well-balanced proportions that immediately create a sense of calm and quality. At the heart of the home is a superb main living room, a bright and welcoming space ideal for both relaxing and entertaining. Sliding pocket doors open seamlessly into a separate, well-appointed kitchen, allowing the layout to flex effortlessly between open plan living and more defined spaces. There is access to two substantial private balconies, positioned to the front and rear, each offering outstanding open views across the surrounding area and beyond. The accommodation is completed by two generous double bedrooms, including a principal bedroom with a modern en suite shower room. A further contemporary three-piece shower room sits off the reception hall, finished to a high standard. The apartment also benefits from ample built-in storage, underfloor heating throughout, lift access to every level, and the significant advantage of an allocated parking space within the secure residents’ car park. Externally, residents can enjoy a delightful, shared garden to the rear, providing a peaceful green retreat in the heart of the city. Montague Street is well positioned for enjoying the very best of Glasgow’s West End and city centre amenities. A wide selection of cafés, restaurants, bars and independent shops are close at hand, while Kelvingrove Park, the University of Glasgow and cultural attractions such as the Kelvingrove Art Gallery and Museum are all within easy reach. Excellent public transport links, including nearby subway and rail services, ensure swift access throughout the city, while road links are equally convenient for commuters. A penthouse of this calibre, combining private outdoor space, lift access, parking and a prime location, is exceptionally rare — an outstanding opportunity to acquire a truly special home. Accommodation: • Security entry system • Well-presented communal entrance hall with lift and stair access to each level • Welcoming reception hall with two useful storage cupboards off • Superb main living/dining room with sliding doors to substantial private balconies • Impressive kitchen access via sliding pocket doors from the living/dining room complete with a range of base and wall units, integrated appliances and access to second private balcony • Bedroom one with fitted wardrobes and front facing balcony • Modern en suite shower room comprising three-piece suite • Bedroom two with window to the rear and fitted wardrobes • Stylish three-piece shower room. Window to the rear • Gas central heating – underfloor heating throughout the apartment. • Double glazing • Lift access to each level • Allocated parking space within the secure residents’ car park EPC: B Council Tax: D Tenure: Freehold

Reference: GWE250824

Request a viewing for this property

Simply fill out the form below or alternatively call us on 020 7839 0888

* Mandatory fields