1 Bedroom First Floor Flat
£109,000
Thornwood, Glasgow

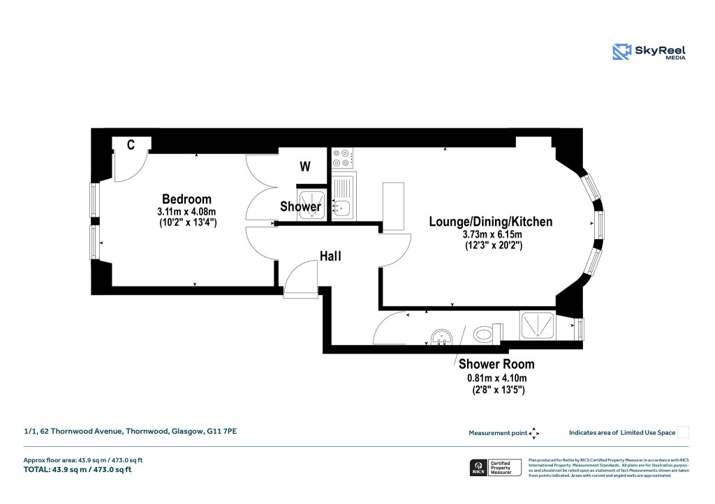
Floorplans For Thornwood, Glasgow
EPC Graph for Thornwood, Glasgow}

Description


CLOSING DATE MONDAY 27TH OCTOBER AT 2PM A naturally bright and appealing one bedroom apartment occupying a preferred first floor position within a traditional red sandstone tenement building. Located just off Crow Road in the highly popular and incredibly convenient Thornwood area, 62 Thornwood Avenue is exceptionally well placed to take advantage of an enviable selection of local amenities on Crow Road including Crow Road Retail Park and further amenities on Dumbarton Road together with excellent transport links and easy access to The University of Glasgow. The internal accommodation benefits from excellent natural light, is generously proportioned and includes a spacious bay windowed lounge/dining room, an open plan kitchen, a generous double bedroom with generous storage/shower enclosure and a three piece shower room off the reception hall. Accommodation: • Security entry system • Communal entrance close • Reception hall • Bright and spacious lounge/dining room with three section bay window • Open plan kitchen • Generous double bedroom with two section window to the rear • Three-piece shower room. Window to the front. • Gas central heating • Double glazing • Shared garden to the rear of the building

Reference: GWE250811

Request a viewing for this property

Simply fill out the form below or alternatively call us on 020 7839 0888

* Mandatory fields