1 Bedroom Upper Floor Flat
£129,000
North Woodside, Glasgow

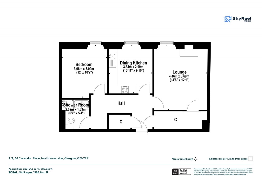
Floorplans For North Woodside, Glasgow
EPC Graph for North Woodside, Glasgow}

Description


Occupying a second-floor position within a traditional, blonde sandstone tenement on Clarendon Place, this well presented, one-bedroom flat offers a fantastic opportunity for both owner-occupiers and investors alike. The property enjoys a prime position within a factored building, ideally situated between Glasgow’s vibrant West End and Glasgow City Centre - placing it within easy reach of a wealth of amenities, universities, and transport links. Internally, the flat is in good order throughout, benefitting from neutral décor and quality fixtures that contribute to a bright, modern living environment. The accommodation comprises a welcoming entrance hallway, a spacious living room, a well-appointed dining kitchen, a generously proportioned double bedroom, and a stylish three piece shower room. With its close proximity to the University of Glasgow, Glasgow Caledonian University, and the world-renowned Glasgow School of Art in Garnethill, this flat is ideally suited to students, professionals, and commuters alike. In addition, the property’s location allows quick access to the Underground Rail network, and it is perfectly positioned for convenient travel throughout West Central Scotland via major road links. Accommodation: • Security entry system • Communal entrance close • Welcoming reception hall with wooden flooring and two useful storage cupboards off • Impressive lounge with window to the front, wooden flooring, access to generous storage cupboard and focal point fireplace • Dining kitchen with window to the front and wooden flooring • Spacious double bedroom with window to the front and wooden flooring • Three-piece shower room • Gas central heating • Double glazing EPC: C Council Tax: C Tenure: Freehold

Reference: GWE250704

Request a viewing for this property

Simply fill out the form below or alternatively call us on 020 7839 0888

* Mandatory fields