5 Bedroom Terraced House
£545,000
Jordanhill, Glasgow

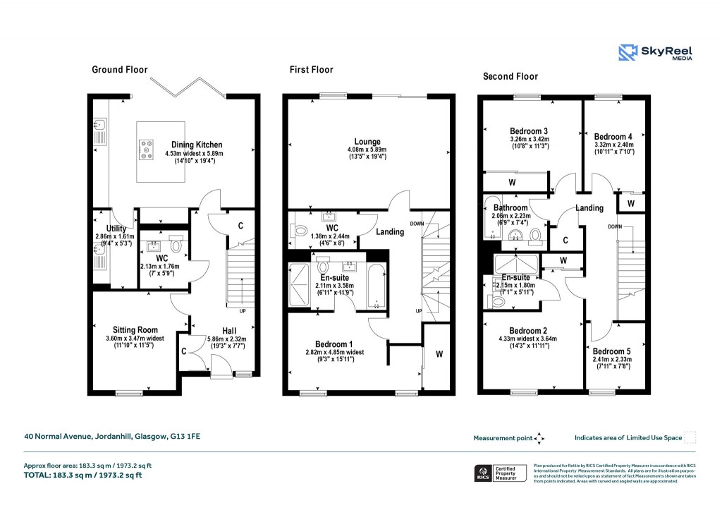
Floorplans For Jordanhill, Glasgow
EPC Graph for Jordanhill, Glasgow}

Description


This stunning modern townhouse on Normal Avenue forms part of a particularly attractive Cala Homes development and offers beautifully presented, flexible accommodation arranged over three levels. Finished to an exacting standard throughout, the property combines contemporary design with generous proportions, making it an ideal family home. The ground floor welcomes you with a versatile sitting room to the front, perfect as a snug, home office or playroom. To the rear, the outstanding dining kitchen is the heart of the home, thoughtfully designed for both everyday living and entertaining, with direct access to the garden. An invaluable utility room sits just off the kitchen, along with a convenient downstairs WC. On the first floor, there is a fabulous main lounge, flooded with natural light and offering a wonderful space to relax. The principal bedroom is also located on this level and is complemented by a stylish four-piece en suite bathroom. A further WC off the first-floor landing adds to the practicality of the layout. The second floor provides excellent family accommodation, with four adaptable bedrooms, an en suite shower room off bedroom two and a contemporary family bathroom, ensuring ample space and comfort for a growing household or visiting guests. Externally, the property benefits from a fully enclosed, south-facing garden to the rear, ideal for outdoor dining and enjoying the sun, while a private driveway to the front provides off-street parking. Normal Avenue is well placed for a wide range of local amenities, including popular cafés, shops and supermarkets, as well as highly regarded schooling at both primary and secondary levels. Excellent transport links are close at hand, with nearby train stations on the Cathcart Circle line and easy access to major road networks, making commuting into Glasgow city centre and beyond straightforward. Several parks and green spaces are also within easy reach, offering excellent opportunities for leisure and recreation. Accommodation: Ground Floor • Broad and welcoming reception hall with storage cupboard off, useful under stair storage cupboard and staircase to upper levels • Adaptable sitting room with picture window to the front • Cloaks/WC comprising two-piece suite • Outstanding, fully fitted dining kitchen with direct access to the rear garden through bi-fold door which span virtually the whole back wall. There is a comprehensive range of base and wall units, integrated Siemens appliances and an impressive central island with breakfasting bar • Invaluable utility room off the kitchen First Floor • First floor landing with staircase to upper level • Superb formal lounge with large picture window and sliding double doors to Juliet style balcony • Principal bedroom with two windows to the front and fitted mirrored wardrobes • Stylish en suite bathroom comprising bath, separate shower enclosure, toilet and wash hand basin • WC off the first-floor landing comprising two-piece suite Second Floor • Second floor landing with storage cupboard off • Bedroom two with window to the front and fitted wardrobes • En suite shower room comprising three-piece suite • Bedroom three with window to the rear and fitted wardrobes • Bedroom four with window to the rear and fitted wardrobes • Bedroom five with window to the front • Contemporary family bathroom comprising three-piece suite Additional Features • Gas central heating • Double glazing • Attractive, fully enclosed south facing rear garden access from the kitchen • Private driveway • Additional visitor parking to the front

Reference: GWE250560

Request a viewing for this property

Simply fill out the form below or alternatively call us on 020 7839 0888

* Mandatory fields