5 Bedroom Link Detached House
£685,000
Romford

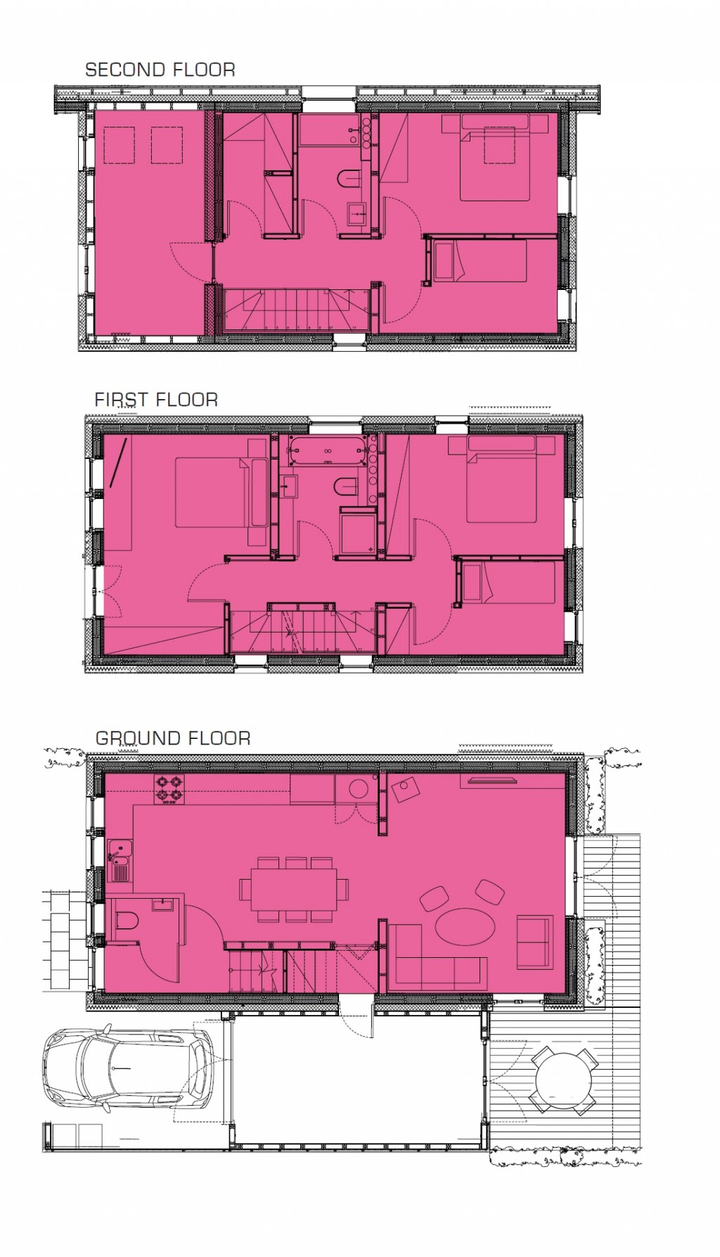
Floorplans For Romford
EPC Graph for Romford}

Description


Key Features

  • Five Bedroom Link Detached Eco Friendly Home
  • Two Miles from the Centre of Romford
  • Integrated Solar PV Roofing System and Triple Glazing
  • Air Source Heat Pump, Heating and Cooling System
  • Top Floor Solar Room - Ideal Yoga or Gym Space
  • High Specification of Quartz Granite Work Surfaces, Bosch Appliances, Virgin Media Superfast Broadband and BT Connection
  • Council Tax Band: F
  • Tenure: Freehold
Modern Link Detached House in within a bustling town, this charming property boasts 5 bedrooms and is the perfect blend of style and comfort. The bright and spacious interiors create a homely atmosphere, ideal for family living. Well-maintained throughout, this property offers a contemporary lifestyle with a touch of elegance.

Outside, a lovely garden provides a peaceful retreat, while off-street parking and a garage offer convenience.

Situated in a sought-after location, this property is within easy reach of local amenities, schools, and transport links. Don't miss the opportunity to make this stylish house your new home. Contact us today to arrange a viewing and experience the beauty of this property for yourself.

Reference: GPS250256

Request a viewing for this property

Simply fill out the form below or alternatively call us on 020 7839 0888

* Mandatory fields