2 Bedroom Upper Floor with Lift Flat
£1,300 PCM
Glasgow

Floorplans For Glasgow
EPC Graph for Glasgow}

Description


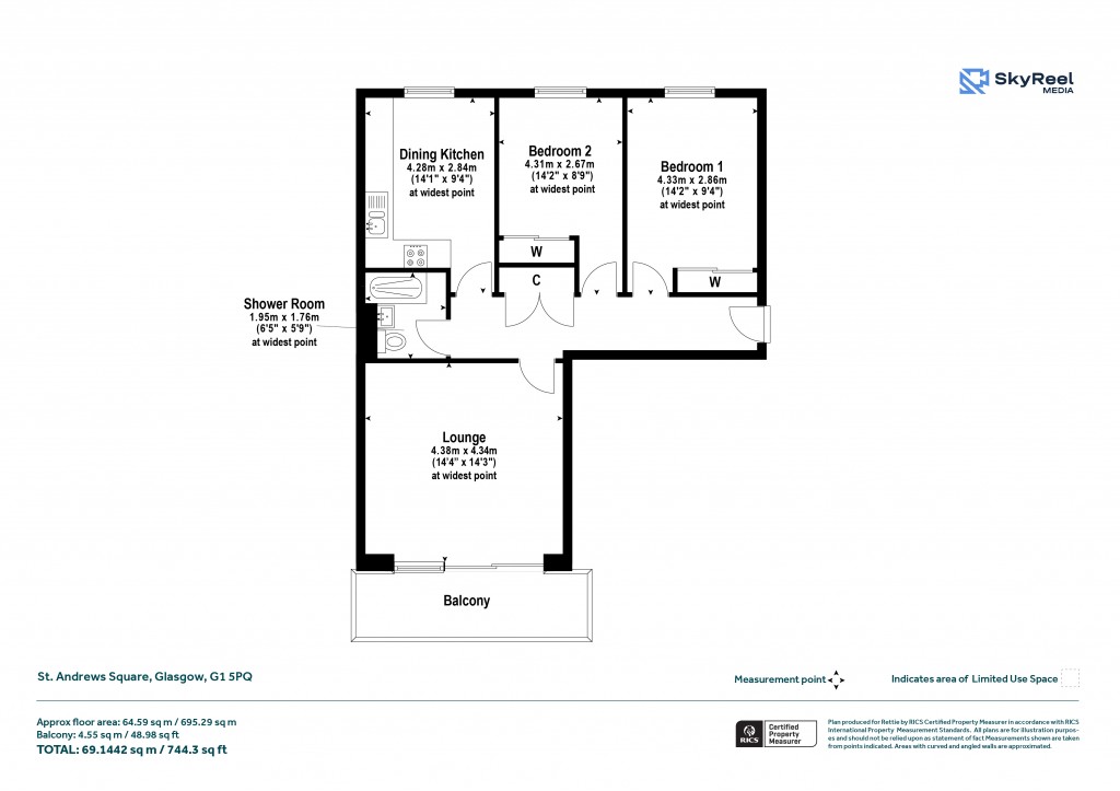
Located on the edge of the Merchant City, within the St Andrews Square development is this bright and modern two-bedroom apartment. The accommodation comprises of welcoming reception hallway, tastefully furnished living room leading to a private balcony overlooking the courtyard, a modern kitchen with a range of base and wall units and added on dining space, two double bedrooms both benefitting from fitted storage and a newly fitted bathroom with three piece suite. The property further benefits from secure door entry system, allocated parking and double glazing. The apartment is situated on the edge of the City Centre and Merchant City where there is an outstanding selection of shops nearby on Ingram Street, Buchanan Street and Argyle Street together with a wonderful choice of restaurants and bars. Transport links are on the doorstep via bus and by rail at both Queen St Station and Glasgow Central Station which are within a few minutes’ walk. There are a number of local hospitals nearby and the property is also well placed for road links including the M8 motorway network Scottish Letting Agent Registration: LARN1903047 Landlord registration: 518681/260/21022 Council tax: D Deposit: £1500 EPC: C

Reference: GLT250268

Request a viewing for this property

Simply fill out the form below or alternatively call us on 020 7839 0888

* Mandatory fields