2 Bedroom Upper Floor with Lift Flat
£1,450 PCM
Glasgow City Centre

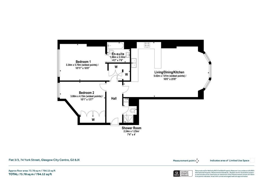
Floorplans For Glasgow City Centre
EPC Graph for Glasgow City Centre}

Description


This two-bedroom apartment is situated in the heart of Glasgow’s City Centre and International Financial Services District. Boasting an open outlook west over York Street towards Atlantic Square from the three-section bay windowed living room, the apartment extends to a generous 794 sq ft internally and forms part of a striking red sandstone building originally completed in 1901, by architect Neil Campbell Duff. Entered via secure entry to communal entrance lobby offering lift and stair accesses the apartment. There is a welcoming reception hall with access off to all rooms, living/dining room with aspects from a three window bay and open plan kitchen is set back from the living space and is complete with a range of base and wall units and space for fridge freezer and separated by a kitchen peninsula, bedroom one has a window to rear lightwell, has great storage with full height triple wardrobes and an en suite bathroom; bedroom two is also situated to the rear of the property and has a wall of built in wardrobes and there is a separate shower room, the property has gas central heating and double glazing with secondary glazing panels for sound and heat insulation in the living space. The building and communal areas are well maintained and it is exceptionally well placed for a both general and specialist shopping and a great selection of local amenities including excellent transport links, café’s, bars, shops, restaurants and gyms. Situation: Located in the heart of the International Financial Services District the building is also conveniently located for access the Merchant City and Finnieston where a wealth of amenities can be found. The property is in close proximity to the Glasgow School of Art; Royal Conservatoire, Strathclyde, Caledonian and Glasgow Universities. The area benefits from frequent public transport with easy access to nearby stations; Central Station and Queen Street Train Stations and St Enoch Underground. The nearby M8/M74 ensures good commuter access throughout the Central Belt. Scottish Letting Agent Registration: LARN1903047 Landlord registration: 1790045/260/30092 Deposit £1650 Council tax: E EPC:B

Reference: GLT250245

Request a viewing for this property

Simply fill out the form below or alternatively call us on 020 7839 0888

* Mandatory fields