3 Bedroom Upper Floor Flat
£1,250 PCM
Crookston, Glasgow

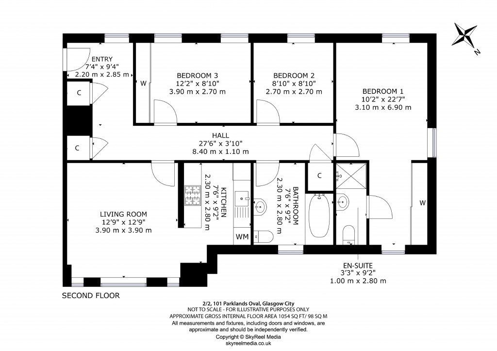
Floorplans For Crookston, Glasgow
EPC Graph for Crookston, Glasgow}

Description


Situated in Crookston, this stunning upper-floor apartment exudes period charm and character. Boasting three spacious bedrooms, this unfurnished property is perfect for those seeking a stylish and comfortable living space. As you enter the apartment you are met with a welcoming reception hallway., the bright and airy living room is perfect for relaxing and entertaining guests. The large windows flood the room with natural light, creating a warm and inviting atmosphere. The modern kitchen is equipped with high-quality appliances and ample storage. The three bedrooms are generously sized with the master bedroom featuring an en-suite bathroom. The apartment benefits from on-street parking and gas central heating. Additionally, the property is conveniently located near a range of amenities, including shops, restaurants, and transport links. Scottish Agent Registration Number: LARN1903047 Landlord Registration Number: 512218/260/14112 Deposit: £1,450 Council tax: F EPC: D

Reference: GLT240258

Request a viewing for this property

Simply fill out the form below or alternatively call us on 020 7839 0888

* Mandatory fields