2 Bedroom First Floor Flat
£1,250 PCM
Merchant City, Glasgow

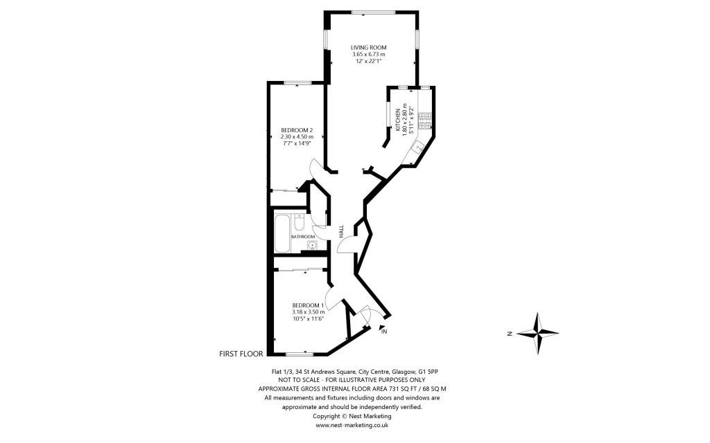
Floorplans For Merchant City, Glasgow
EPC Graph for Merchant City, Glasgow}

Description


Located on the edge of the Merchant City, within the St Andrews Square development, a courtyard development completed in the 1990’s. The modern properties are centered around the historic and beautiful 18th Century St Andrew's in the Square Church building, currently operating as a Centre for Scottish Culture, and benefiting from easy access to Glasgow Green, the City Centre and great transport links. This bright and modern two-bedroom preferred first floor apartment offers freshly presented accommodation to include living room with dining area, a modern kitchen off set with serving hatch and feature glass bricks, there are two double bedrooms, a lovely main bathroom and real wood flooring to all apartments with the exception of the kitchen and bathroom which are tiled. Accommodation: • Video security entry system; communal entrance; lift and stair access • Welcoming reception hall with wood flooring, storage cupboard • Main living/dining room with wooden flooring and a large two section window providing lots of natural light. • Modern kitchen set back from the living space, separated by a dining hatch and complete with a range of base and wall units and a mix of integrated and under counter appliances. • Bedroom one is a double sized room with window facing towards St Andrews in the Square and has an integrated double wardrobe and wooden flooring. • Main three-piece bathroom has over bath shower and tilled floor and wall coverings. • Bedroom two is a double sized bedroom with window facing north, double fitted wardrobe and wooden flooring. • The property has electric heating. Freshly decorated. Situation: The apartment is situated on the edge of the City Centre and Merchant City where there is an outstanding selection of shops nearby on Ingram Street, Buchanan Street and Argyle Street together with a wonderful choice of restaurants and bars. Transport links are on the doorstep via bus and by rail at both Queen St Station and Glasgow Central Station which are within a few minutes’ walk. There are a number of local hospitals nearby and the property is also well placed for road links including the M8 motorway network LARN: 1903047 Landlord registration: 1699504/260/12122 Deposit £1450 EPC: C Council tax: D

Reference: GLT240205

Request a viewing for this property

Simply fill out the form below or alternatively call us on 020 7839 0888

* Mandatory fields