3 Bedroom Upper Floor with Lift Flat
£235,000
Merchant City, Glasgow

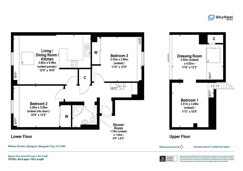
Floorplans For Merchant City, Glasgow
EPC Graph for Merchant City, Glasgow}

Description


True loft living with this unique duplex city warehouse conversion, situated on the fourth floor and extending into the attic space with coomb ceilings, the property offers spacious living accommodation over two floors. The apartment interior is well presented and offers contemporary living in the Merchant City, with notable highlights including the open plan, vaulted ceiling living dining kitchen; two generous double bedrooms with fitted wardrobes; refitted main shower room; good storage and open tread stair leading up to two adjoining upper mezzanine rooms. Set within an attractive blond sandstone warehouse building of circa 1790, the building was converted into flats in the 1980’s as part of the regeneration of the Merchant City and underwent an extensive refurbishment programme in line with Historic Scotland listed building guidelines, in 2014. Works included a new roof, lead work, guttering, windows were replaced throughout and stone cleaning and repair to reveal the buildings original character. Accessed via secure entry to communal hallway and with further secure landing door, there is lift or stair access to each floor. Welcoming l-shaped reception hall with large storage cupboard; impressive main living/dining room with double height ceiling, double glazed window and ceiling Velux, original hardwood flooring and aspects to the open plan mezzanine floor. Set back from the living space and separated by a peninsula, is a functional re-fitted kitchen complete base and wall units, and a mix of undercounter and integrated appliances. Main shower room re-fitted with a corner shower, toilet and wash hand basin inset to vanity cabinetry. An open tread staircase leads from the hallway to the mezzanine rooms, currently set as a third bedroom and large study which has coombe ceilings with Velux window to the rear. The property is freshly presented in neutral colour palette with wood flooring to the lower floor, carpeted floor coverings in the bedrooms and upper floor. There is electric heaters, double glazed windows and has the considerable benefit of access to Glasgow City Council Residents Permit Parking. Situation: This apartment is situated in the heart of the Merchant City, an area of Glasgow’s City Centre which has benefitted from significant redevelopment in the last few decades with a mix of both residential and commercial redevelopment. This location offers unquestionably one of the most envied and prominent social locations Glasgow has to offer with wealth of amenities including both general and specialist shopping, wine bars and many highly acclaimed restaurants and is also conveniently located for access to the City Centre. The property is in proximity to Strathclyde & Caledonian Universities, the Glasgow School of Art, the S.E.C. and The Clyde Auditorium. The area benefits from frequent public transport with easy access to Central and Queen Street Train Stations, and St Enoch subway stations. Public transport and road links are exceptional. Travel Directions: On foot from George Square head south onto South Frederick Street towards Ingram Street. At the traffic lights turn left onto Ingram Street. At the junction with Glassford Street, turn right and continue south on Glassford taking the second road on the left into Wilson Street where you will find No. 60 halfway along the block on the left-hand side.

Reference: GCY250230

Request a viewing for this property

Simply fill out the form below or alternatively call us on 020 7839 0888

* Mandatory fields