£10,000
Merchant City, Glasgow

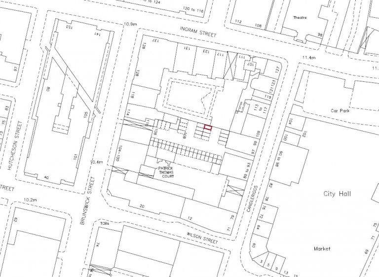
Floorplans For Merchant City, Glasgow

Description


Secure parking space for sale, located in central Merchant City within a ground floor, former stable block. Entered via remote-access ornate, wrought iron electric gates, the drive-in pend opens into a large enclosed carpark that spans from the Candleriggs entrance through to Brunswick Street where there is a walk out exit. Our space No. 15 is located on the edge of the right hand wall and would only be suitable for a small car; for garaging your motorbikes or alternatively a slightly larger car if your parking skills are equal to racing driver Alastair Moffatt's. The car park is secure, gated, undercover, it has CCTV and is factored by Speirs Gumley. Ideal if you live or work in the city or for an investor, this could offer at least a 6% yield with parking spaces commanding circa £100pcm, the space could be a great addition to your portfolio. Situation: Located in the Merchant City, this setting offers unquestionably one of the most envied and prominent social locations Glasgow has to offer and a thriving residential community, there are a wealth of amenities including both general and specialist shopping, wine bars and many highly acclaimed restaurants. This destination neighbourhood, within Glasgow’s City Centre has benefitted from significant redevelopment in the last few decades with a mix of both residential and commercial redevelopment. The parking space is in close proximity to Glasgow’s Style Mile, Glasgow’s International Financial Services District, Strathclyde & Caledonian Universities, the Glasgow School of Art, the SEC and The Clyde Auditorium. The area benefits from easy access to High Street, Queen Street and Central Train Stations and road links are exceptional. Travel Directions: Walking from George Square continue South onto South Frederick Street. At the lights turn left onto Ingram Street passing by the Italian Centre on the left. Crossing at the pedestrian lights on the Glassford Street Junction, continue heading east on Ingram Street, continue along Ingram Street to the junction with Candleriggs where you will find the gated entrance to No. 95 on the right-hand side. Outgoings: The parking space is managed by Speirs Gumley and their basic quarterly charge is their fee of £19.26 and £7.33 for insurance. However, additional charges have been incurred when remedial work is required. Over the past year the current owner has paid varying amounts from £35 to £66 per quarter.

Reference: GCY250209

Request a viewing for this property

Simply fill out the form below or alternatively call us on 020 7839 0888

* Mandatory fields