1 Bedroom Upper Floor Flat
£165,000
Finnieston, Glasgow City

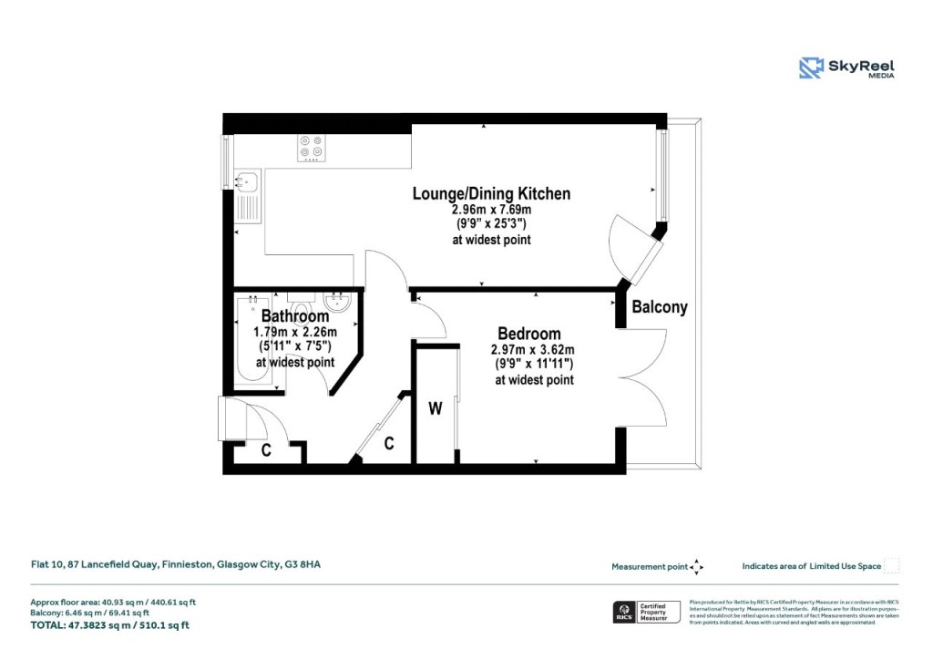
Floorplans For Finnieston, Glasgow City
EPC Graph for Finnieston, Glasgow City}

Description


With a striking view over Glasgow’s River Clyde and beyond from the property’s balcony, spanning almost 20 ft, this lovely one-bedroom apartment has the advantage of a secure allocated parking space in the undercover car park and modern finishes. Situated on the second floor of the original Lancefield Quay development, within one of Glasgow’s early residential warehouse redevelopments and located on edge of the River Clyde, the apartment itself faces south over the river with views that can be enjoyed from its own private balcony. The property is well presented and is exceptionally well located for both the City Centre and International Financial Services District and nearby Finnieston, with a wealth of local amenities on Argyle Street, together with excellent transport links. Accessed via a secure entrance from both street and car park, stairs lead to upper floors and a further secure door to upper courtyard. The property extends to L-shaped hallway with two storage cupboards, an open plan living dining kitchen extending over 25 ft and with a wall of glass and patio doors to the private, partially covered balcony, the modern kitchen is re-fitted and complete with a range of base and wall units with integrated appliances to include Modern Bosch fridge and dishwasher and with window overlooking the entrance courtyard area; double bedroom with full height windows and patio style door to balcony with a generous fitted wardrobe; there is a three piece bathroom with over bath shower. The property has gas central heating combi boiler with Smart Nest heating system, double glazing and an allocated parking space within the building’s residents’ car park. Situation: Lancefield Quay is situated on the edge of the City Centre and offers easy access to the central business district and a superb choice of wine bars, many highly acclaimed restaurants and wealth of amenities including both general and specialist shopping. In addition, being ideally located mid-way between Glasgow City Centre and the trendy West End’s vibrant neighbourhood of Finnieston, a prominent and widely renowned social location; there is within a short distance a myriad choice of exhibition and conference venues, shopping, culture, and several fitness clubs. In close proximity, is Glasgow’s media centre, the Universities of Glasgow, Strathclyde and Caledonian. Excellent road links, including M8, M74 and M77 motorways, are all easily accessible as are Exhibition Centre Train Station for access to Glasgow Central Railway Stations. Glasgow, Edinburgh and Prestwick airports can all be reached within less than an hour’s drive. Travel Directions: Driving from our branch on Bath Street, proceed west on Bath Street towards Charing Cross, at the junction with Newton Street turn left and proceed south on A804 towards Anderston Quay, at the junction turn right onto Lancefield Quay where the building can be found on the left-hand side. No. 87 is at the far end of the block opposite the entrance to Lancefield Street.

Reference: GCY250198

Request a viewing for this property

Simply fill out the form below or alternatively call us on 020 7839 0888

* Mandatory fields