2 Bedroom Upper Floor Flat
£155,000
New Gorbals, Glasgow City

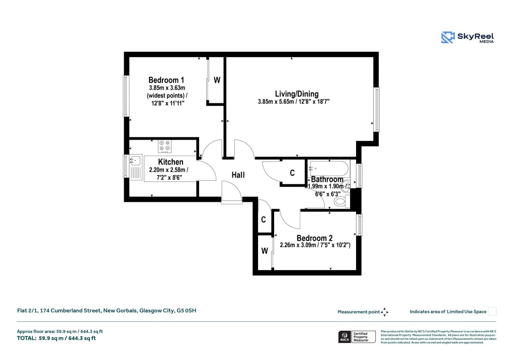
Floorplans For New Gorbals, Glasgow City
EPC Graph for New Gorbals, Glasgow City}

Description


Located within the very popular New Gorbals, this modern second floor, two-bedroom apartment benefits from well maintained private residents’ grounds and gardens to the rear as well as ample residents parking on street. Following an impressive program of urban regeneration in the late 1990’s this desirable suburb is situated on the south edge of the City Centre, only minutes’ walk over the River Clyde to Glasgow Green and the Merchant City beyond and is conveniently located for easy access to many of the city’s great amenities, business headquarters and transport links. Accessed via a security entry system there is stair access to all levels and the rear enclosed gardens. The block was completed circa 2000 by Miller Homes, and the apartment is well laid out with the entrance hallway providing access to all main apartments and two storage cupboards. The accommodation extends to 667 sq ft and comprises of main living space spanning 18’7” with lots natural light flooding in, a modern re-fitted kitchen, two bedrooms, both with fitted wardrobes and modern main bathroom with three-piece suite and over bath shower. The property has double glazing, gas central heating and an allocated parking space and would be ideal for a first-time buyer starter home, families or for a buy to let investor looking for great rental opportunity. Situation: Located within the New Gorbals area of Glasgow City, the area has undergone extensive urban regeneration over the last 20 years. This well-established suburb has its own shopping precinct yet benefits from easy access to both Glasgow’s main shopping thoroughfare, the ‘Style Mile’ being only 1.5miles away and a pleasant walk over Albert Bridge and with the Gorbals Leisure Centre only a few minutes’ walk away. It is an area of Glasgow which has benefitted from significant and ongoing redevelopment over the last few decades and is in good proximity to Strathclyde & Caledonian Universities, the Glasgow School of Art, the SEC and The Clyde Auditorium. The area benefits from frequent public transport with the nearby city centre offering access to Central and Queen Street Train Stations, and St Enoch subway stations. Public transport and road links are exceptional. Travel Directions: From Gorbals Leisure Centre on Ballater street, continue east turning first right into commercial Street. At the junction with Old Rutherglen Road, turn right onto Old Rutherglen Road and continue west towards the junction with Crown Street, turn left into Crown Street and continue southwest past the shops where you will find Cumberland Street 2nd on the left. Thereafter No. 74 is a short distance along on the right-hand side.

Reference: GCY250175

Request a viewing for this property

Simply fill out the form below or alternatively call us on 020 7839 0888

* Mandatory fields