1 Bedroom Upper Floor with Lift Flat
£175,000
Merchant City, Glasgow City

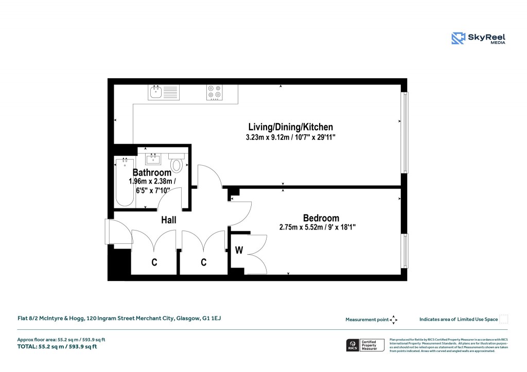
Floorplans For Merchant City, Glasgow City
EPC Graph for Merchant City, Glasgow City}

Description


Located within one of the oldest and most stylish districts of Glasgow’s City Centre, this modern eight floor, one-bedroom apartment spans circa 600 sq ft, and is exceptionally well placed within the heart of the Merchant City to take advantage of an enviable selection of local amenities including excellent bars and restaurants, shopping and transport links and is situated within the modern section of the redevelopment of the 1800’s shirt factory building, The McIntyre, Hogg & Co. The development offers a fusion of modern design and traditional architecture from the adjoining B listed façade and provides a range of high specification, modern apartments which were completed circa 2007. Parking space available by seperate negotiation. Accessed via secure entry to communal hallway, there is lift and stair access to all floors. Entered via welcoming reception hallway with two storage cupboards. There is a lovely and bright open plan living dining space extending to almost 30 ft into the kitchen area and with east facing aspects above Montrose Street and the roof top of the striking Garment Factory Building. The kitchen is set back from the living space and completed with a range of base and wall mounted units with integrated appliances and granite worktop, double bedroom with fitted wardrobes, Porcelanosa main bathroom with three-piece suite and over bath shower. Recently redecorated, the property has quality finishes to include Karndean flooring in the hall and main living space, granite kitchen work surfaces, excellent storage, double glazing throughout, an electric combi boiler central heating system. Situation: Centrally located within the heart of the Merchant City, the property is situated on one of Glasgow City Centre’s most prominent streets, where there is an exceptional choice of highly acclaimed restaurants and bars in the immediate vicinity and, as part of the Glasgow Style Mile, there is a wonderful selection of shops including designer stores on Ingram Street and the nearby Buchanan Street and Argyle Street. Public transport links are on the doorstep via bus and by rail. Both Buchanan Street and St Enoch Square subway stations, and High Street, Queen Street Station and Glasgow Central Station, are all within a few minutes’ walk. There are a number of educational institutions within the city centre, and between Strathclyde University, Glasgow Caledonian University, Glasgow Art School, Royal Conservatoire, City of Glasgow College there are over 70,000 students and high demand for City Centre accommodation for staff and students alike. Also nearby is the Royal Infirmary hospital and the property is also well placed for road links including the M8 motorway network. Travel Directions: On foot from George Square head south onto South Frederick Street towards Ingram Street. At the traffic lights turn left onto Ingram Street. Continue heading east, passing John Street and you will find No. 120 is on the left-hand side just before the junction with Montrose Street and above Tinderbox café.

Reference: GCY250134

Request a viewing for this property

Simply fill out the form below or alternatively call us on 020 7839 0888

* Mandatory fields