3 Bedroom Terraced House
£319,000
Laurieston Living, Glasgow

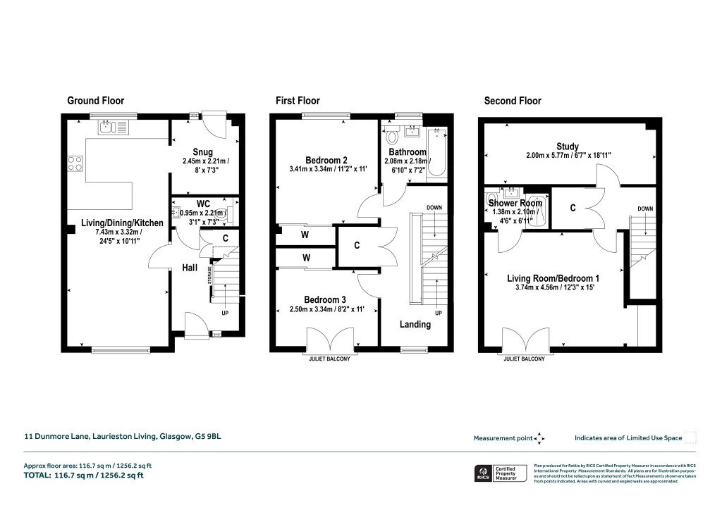
Floorplans For Laurieston Living, Glasgow
EPC Graph for Laurieston Living, Glasgow}

Description


Under Offer at Closing Date - Tuesday 2nd September 2025. This exceptional and luxurious townhouse has been beautifully styled and carefully upgraded during its current ownership from new, it offers a chic and high-quality specification, it is immaculately presented and is centrally located within the award winning Laurieston Living Development. Benefiting from an east facing entrance, this rarely available, three-bedroom, three storey, modern, mid-terrace townhouse has the added advantage of a driveway for off street parking and a fabulous decked and enclosed west facing garden area benefitting from afternoon sun into the early evening. The location is superb, and ideal for home hunters looking to be situated on the edge of Glasgow’s City Centre, with both Barclay’s Wealth Campus and Glasgow’s International Financial Services district around half a mile away, the popular Merchant City less than one mile and excellent transport links via bus, rail, underground and the M8 & M74 motorway network. The property is very well proportioned, spanning over three floors and extending to circa 1256 sq ft, it has great storage, a bespoke layout reconfigured by the current owners however offers very flexible accommodation for modern living and has many notable highlights including the contemporary décor throughout and a very spacious open plan living/dining/kitchen with feature breakfasting peninsula. The property has quality floorcoverings, gas central heating and an EPC Band C. The private driveway and front garden area leads to front door entry. The welcoming entrance hallway has bespoke fitted understairs storage drawers, a utility space, a cloak w.c., stair access to upper floors and offers entry to the generous and bright main living space extending over 24 ft and reconfigured as an open-concept living space with a very generous dining area, re-fitted kitchen complete with a range of matt grey base and wall mounted units with integrated appliances and additional breakfasting peninsula, there is a snug and library off set from the kitchen providing patio door access to the west facing, secure decked garden area. Accommodation on the first floor extends to two generous double bedrooms both with fitted wardrobes and sharing a main bathroom with three-piece white suite, over bath shower and stylish wall and vinyl floor coverings. The third floor offers excellent flexible accommodation with a study room which could double as a walk-in wardrobe, spacious third bedroom, currently used as a living space of over 15 ft and there is a shower room. Viewing is highly recommended to appreciate the quality, flexibility, space and finish of this wonderful home which would suit a wide range of buyers from professional couples, investors and family living alike. Situation: Located just south of Glasgow City Centre, this property is a short walk from a diverse range of amenities, including general and specialist shops, cinemas, and upscale bars and restaurants. The newly refurbished Citizens Theatre is just a few seconds away from the property. It is also close to the vibrant Merchant City, Glasgow Nautical College, Strathclyde and Caledonian Universities, the Glasgow School of Art, the Royal Conservatoire of Scotland, the Theatre Royal, and the Glasgow Concert Hall. This is undeniably one of Glasgow's most sought-after and lively social hubs. The area offers excellent public transport links, with Central and Queen Street train stations nearby, Bridge Street Subway station just minutes away on foot, and Glasgow Airport reachable in a 20-minute taxi ride. Road connections are equally convenient. Travel Directions: From the Merchant City, walk south along Stockwell Street, cross the Queen Victoria bridge onto Gorbals Street, and then turn west onto Norfolk Street. Proceed to Dunmore Lane on your right, where No. 11 is situated towards the end of the terrace. on the left-hand side. EPC: B Council Tax Band: E Tenure: Freehold

Reference: GCY250105

Request a viewing for this property

Simply fill out the form below or alternatively call us on 020 7839 0888

* Mandatory fields