2 Bedroom First Floor Flat
£1,450 PCM
Abbeyhill, Edinburgh

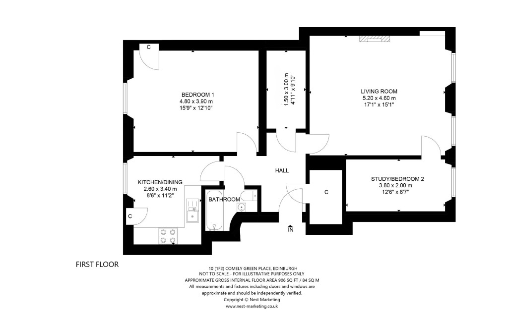
Floorplans For Abbeyhill, Edinburgh
EPC Graph for Abbeyhill, Edinburgh}

Description


A beautifully presented, unfurnished two-bedroom first-floor flat, located in the highly desirable area of Abbeyhill, just a short distance from Edinburgh’s city centre. This attractive property has been recently painted and offers bright, well-proportioned accommodation within a traditional building. Accommodation Comprises: Welcoming entrance hallway with two large storage cupboards; Spacious living room with gas fire and twin windows, allowing plenty of natural light in to the room; A generous principal bedroom; Single bedroom/study accessed off the living room; Modern fitted kitchen with space for dining; Bathroom with shower above bath. Additional benefits include GCH, Entryphone access, a shared garden and on-street permit parking. Abbeyhill is a sought-after residential area on the edge of Edinburgh’s city centre, with easy access to many amenities. There are a wide range of local shops, cafés, and restaurants, as well as larger supermarkets such as Sainsbury’s and Tesco, and the nearby Meadowbank Retail Park provides additional shopping options. The area is also close to Holyrood Park, Arthur’s Seat, and Calton Hill, offering beautiful green spaces for walking and recreation, and the cycle path offers scenic traffic-free connections across the city. Regular buses provide quick access to the city centre, Waverley Station, and other parts of Edinburgh. Road links to the City Bypass (A720) and onward routes to the M8, M9 and Edinburgh Airport are also convenient. Deposit: £1650 Council Tax Band: D EPC Rating: D Landlord Registration Number: 92377/230/02410 & 1507933/230/23112 Agent Registration Number: LARN1903047

Reference: EDL700014

Request a viewing for this property

Simply fill out the form below or alternatively call us on 020 7839 0888

* Mandatory fields