1 Bedroom First Floor Flat
£1,850 PCM
York Place, Edinburgh

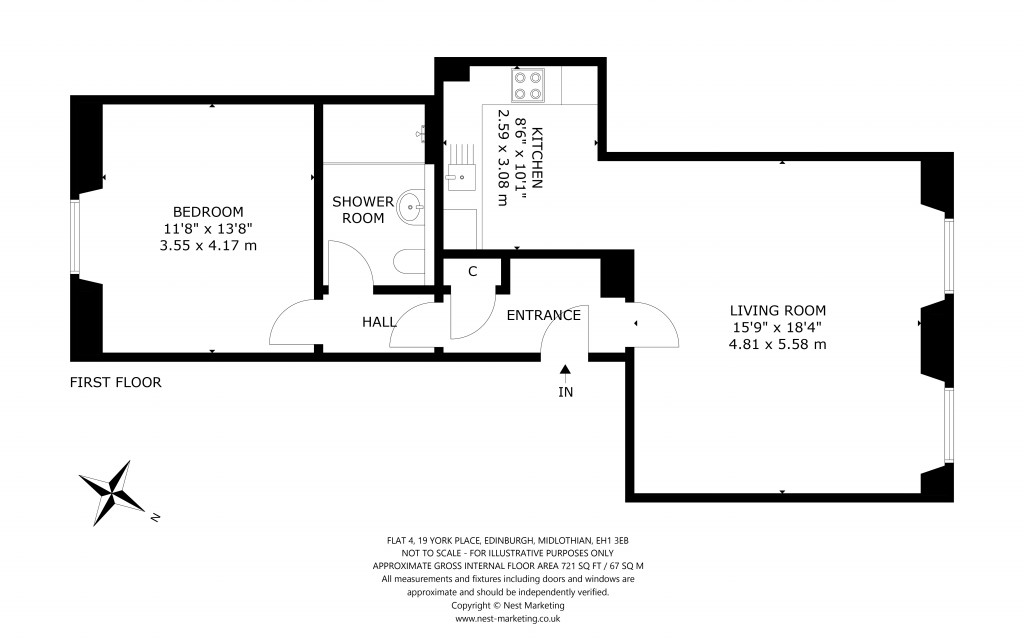
Floorplans For York Place, Edinburgh
EPC Graph for York Place, Edinburgh}

Description


Immaculate first floor high-end apartment, set within a charming B listed building, located right in the heart of Edinburgh. Accommodation comprises; Bright living room with high ceilings and large windows allowing a lot of light in and plenty space for a large dining table; Kitchen is set off the living room and has plenty of storage, integrated appliances and electric hob; Double bedroom which is set to the rear of the building which is particularly quiet and benefits from good storage; Stylist shower room with spacious walk-in shower. Situated in the city's Georgian New Town, York Place enjoys an enviable, central location in one of Edinburgh's most desirable residential areas. The York Place tram stop is only moments away, providing access throughout the city and beyond, whilst also being walking distance of the main retail and commercial offerings of George Street, Princes Street, St Andrew Square and the new St James Centre. For everyday grocery shopping there is a Tesco Express nearby and a Tesco Superstore at Canonmills. The perfect city centre home. Deposit: £2,050 Furnished No Pets EPC Rating: C Council Tax Band: E Landlord Registration Number: 512443/230/23031 LARN190304

Reference: EDL230417

Request a viewing for this property

Simply fill out the form below or alternatively call us on 020 7839 0888

* Mandatory fields