Description
Key Features
- Stunning river views
- Duplex Apartment
- Close proximity to Shepperton High Street
- Garage
- Communal riverside garden
- Council Tax Band: F
Riverview is one of the most sought-after riverside developments in Shepperton, Surrey, offering a rare combination of tranquility, space, and convenience. This elegant duplex apartment boasts a contemporary design and excellent natural light throughout.
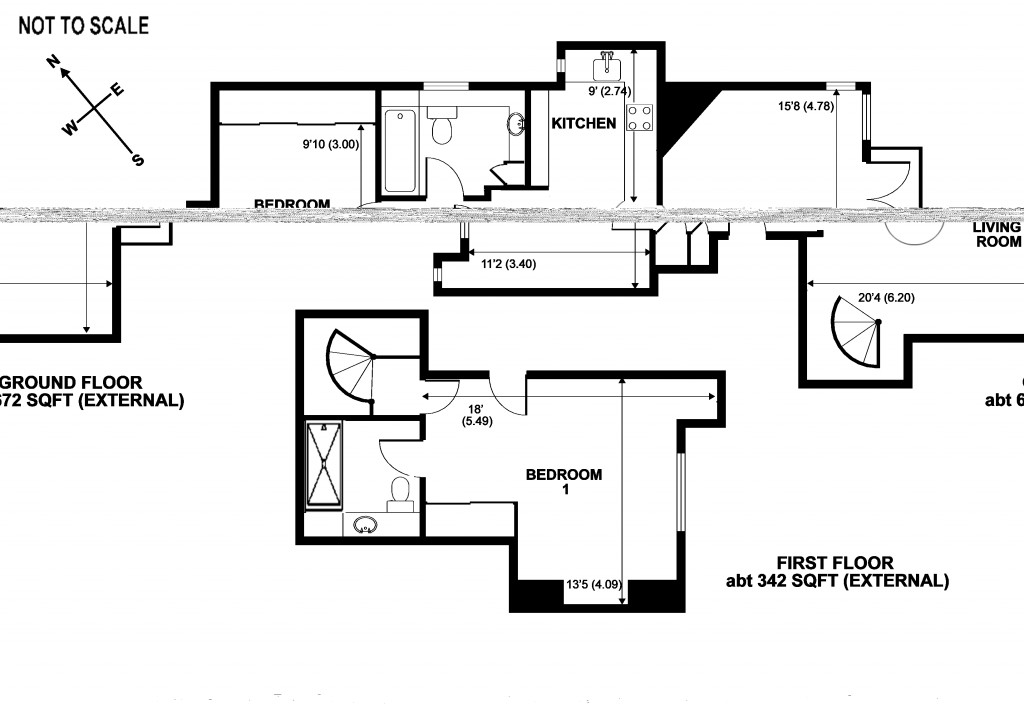
The double-aspect living room opens onto a balcony, providing picturesque views over the Thames and Lower Halliford Green, perfect for relaxing or entertaining. The open-plan kitchen features contrasting high-gloss units with black granite work surfaces and a circular breakfast bar, complemented by fully integrated appliances including a ceramic hob, oven, combination microwave, fridge/freezer, and dishwasher.
The main level includes a second double bedroom with built-in wardrobes and a bathroom with a utility cupboard housing plumbing for a washing machine and tumble dryer. A striking spiral staircase leads to the master bedroom suite, which features built-in wardrobes and a beautifully appointed shower room.
Outside, the well-maintained communal gardens are split into two areas. The south-facing riverside garden offers a recessed seating area, slipway, and private quay, while the rear central garden is set within the residents’ parking area. A single garage with eaves storage completes the property.
Available on a long term letting
5 Week deposit - paid prior to tenancy commencing
Council tax band F
EPC C