4 Bedroom Semi Detached House
£695,000
York Gardens, Walton-On-Thames, Surrey

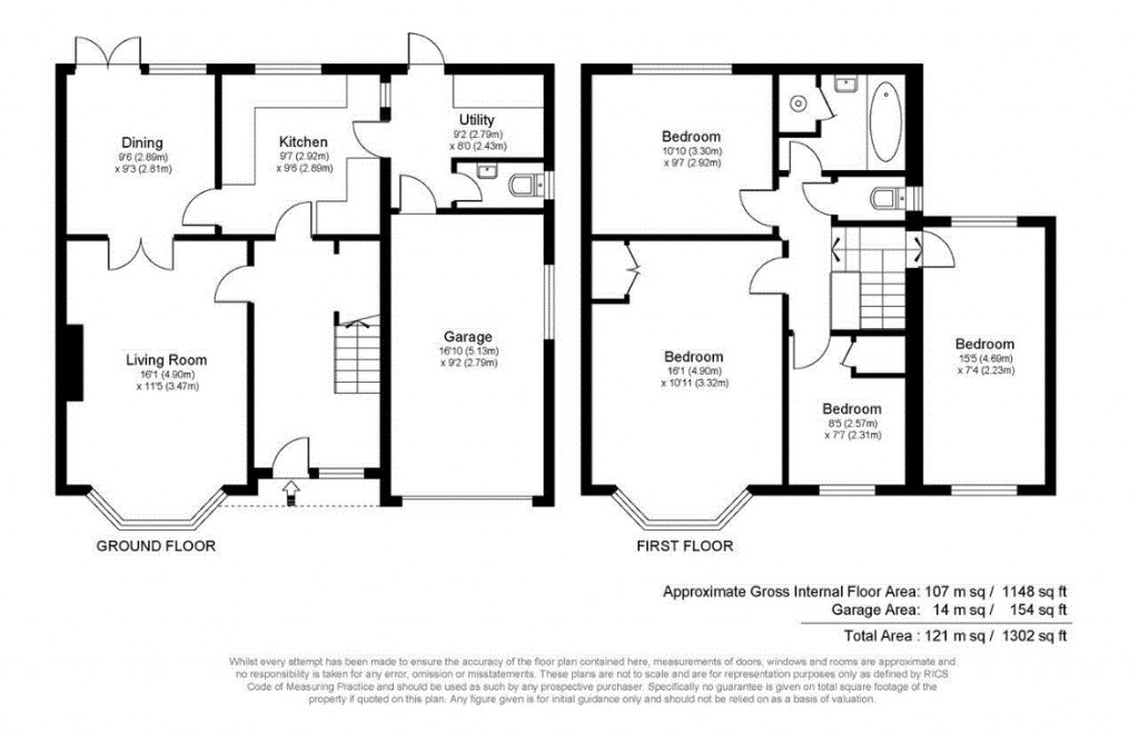
Floorplans For York Gardens, Walton-On-Thames, Surrey
EPC Graph for York Gardens, Walton-On-Thames, Surrey}

Description


Key Features

  • Semi Detached Home
  • Four Bedrooms
  • Living Room
  • Dining Room
  • Kitchen
  • Bathroom
  • Utility Room
  • Ground Floor Cloakroom
  • Gas Heating to Radiators
  • UPVC Double Glazing
  • Highly Regarded 'No Through' Road
  • Close to Hersham Station
  • Council Tax Band: E
  • Tenure: Freehold
York Gardens has always been and remains hugely popular and many houses within the location have been substantially extended. This particular property although extended many years ago has massive scope for additional improvement and further enlargement (subject to usual consents).

The ground floor has a living room (with bay widow) and a separate dining room (with access to the garden), kitchen, utility room and a useful cloakroom.

The first floor has four bedroom and bathroom.

Heating is gas fired to radiators and windows are upvc double glazed units.

Outside, at the front there is a driveway that provides off-street parking and provides access to the garage. There is gated side access to the rear garden which is laid to lawn with plenty of screening and various fruit trees.
Curchods

Curchods

79 High Street
Walton-on-Thames
Surrey
KT12 1DN

+44 (0)1932 247777

Reference: CWN250257

Request a viewing for this property

Simply fill out the form below or alternatively call us on 020 7839 0888

* Mandatory fields