Description
Key Features
- Chalet Style Home
- Flexible & Spacious Accommodation
- Five Bedrooms
- Three Bath/Shower Rooms
- Living Room
- Kitchen/Dining Room
- Bedroom/Family, as required
- Gas Heating to Radiators
- UPVC Double Glazing
- Landscaped Garden & Decking
- Garage & Driveway
- A Environmental Rating
- Council Tax Band: F
- Tenure: Freehold
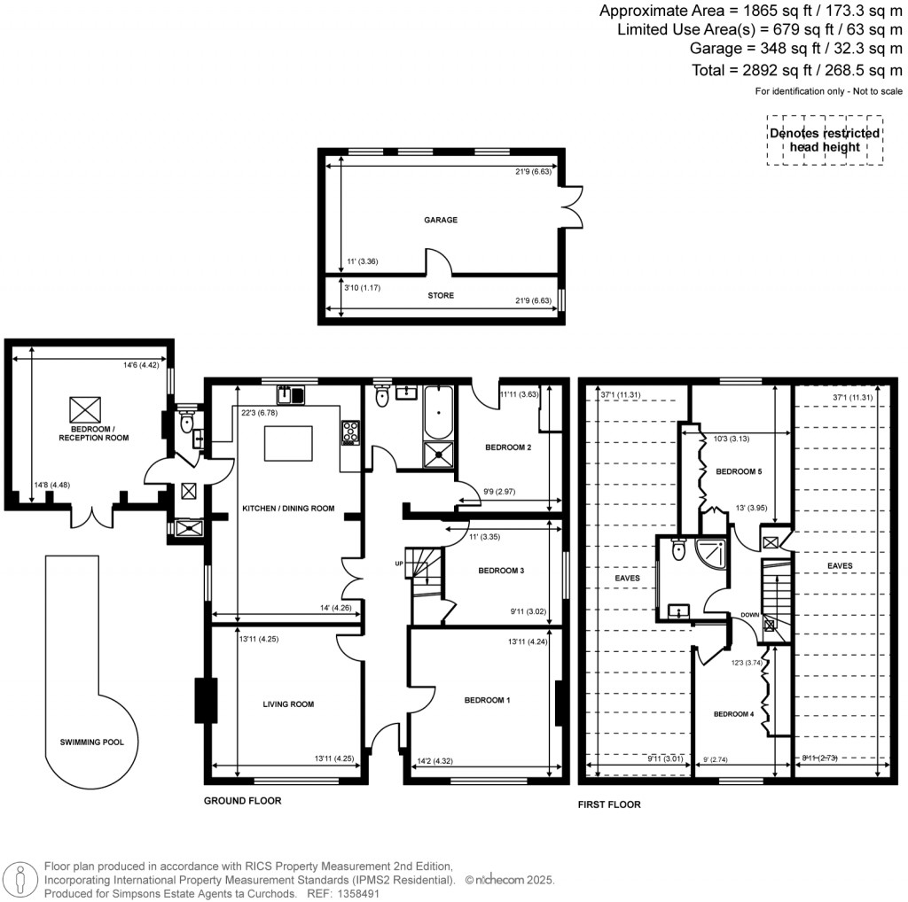
This is a really interesting property which offers huge flexibility throughout. With numerous ground floor rooms, you have various options, as to how to arrange the accommodation. There are certainly three main bedrooms, plus a front aspect living room. There is also a further bedroom/reception room which could be self contained, if required. A glance at the floorplan will reveal a shower and separate cloakroom which could be effectively en-suite to this room. It also features a ceiling lantern and double doors to the rear.
Adjacent to here is a superb and particularly spacious open plan kitchen/dining room. The kitchen features base and eye cupboards and matching drawers, incorporating central island units and various integrated appliances and tiled flooring. There is a further family bathroom.
Upstairs, are two further bedrooms and a shower room.
Heating is gas fired to radiators and windows are UPVC double glazed units.
Outside, our clients have landscaped the front garden which is now lawned with hard landscaping, plus off road parking for multiple cars. There is a detached garage with additional storge area, decking and a disused swimming pool that has been repurposed for rain collection. There are also solar panels and an innovative rain harvesting system on the property, resulting in an exceptional A-rated environmental performance.