2 Bedroom First Floor Flat
£315,000
Bridge Street, Walton-On-Thames, Surrey

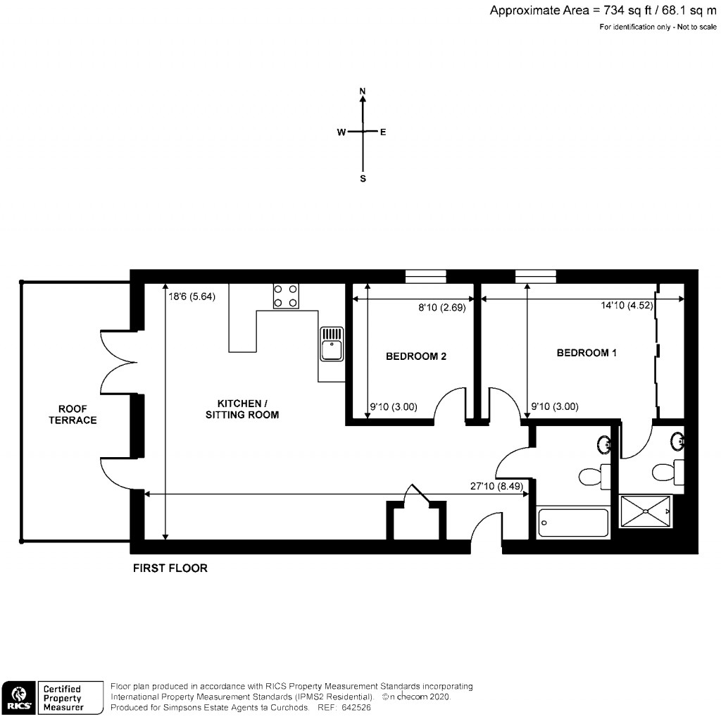
Floorplans For Bridge Street, Walton-On-Thames, Surrey
EPC Graph for Bridge Street, Walton-On-Thames, Surrey}

Description


Key Features

  • First-floor apartment.
  • Two bedrooms & two bathrooms.
  • Private balcony.
  • Allocated parking space.
  • Secure entry-phone system.
  • Lift to all floors.
  • Open plan living space (wood flooring).
  • No onward chain.
  • Council Tax Band: D
  • Tenure: Leasehold
TWO BEDROOM AND TWO BATHROOMS - First-floor purpose-built apartment. Spacious rooms, especially the open-plan living/dining room that open out directly onto a large roof terrace. Integrated oven, hob, extractor-hood all complemented by down-lighting and wood flooring. Two bedrooms, lift servicing all floors and allocated parking space. Entry-phone system for access to the communal lobby.
Curchods

Curchods

79 High Street
Walton-on-Thames
Surrey
KT12 1DN

+44 (0)1932 247777

Reference: CWN200275

Request a viewing for this property

Simply fill out the form below or alternatively call us on 020 7839 0888

* Mandatory fields