3 Bedroom Terraced House
£925,000
Lakeside Grange, Weybridge, Surrey

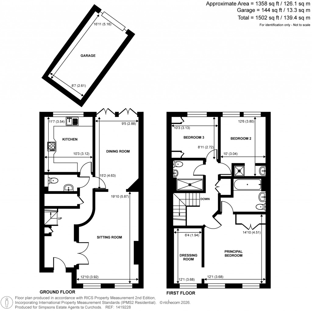
Floorplans For Lakeside Grange, Weybridge, Surrey
EPC Graph for Lakeside Grange, Weybridge, Surrey}

Description


Key Features

  • Charming Regency style home
  • Private gated development
  • Close to local shops and amenities
  • Garage and parking
  • Beautiful landscaped grounds leading to Broadwater Lake
  • Private tennis court
  • Extremely spacious accommodation
  • Catchment for sought after schools
  • Council Tax Band: G
  • Tenure: Freehold
Externally to the rear the garden enjoys a secluded south facing garden. Our clients have had this landscaped to create a truly lovely environment. Offering a high degree of privacy, it is the perfect place to unwind and enjoy some al fresco dining in the warmer months. The property has a garage directly behind the house which has mains water and power. Parking is no issue with plenty of resident and visitor parking close by. The development itself was hailed as one of the finest developments built in recent times. A collection of individual properties inspired by the beautiful Bath Crescents within the grounds of the Oatlands Park Hotel. The extensive communal grounds include gardens leading down to the Broadwater Lake as well as exclusive use of a tennis court.
Curchods

Curchods

Portmore House, 54 Church Street
Weybridge
Surrey
KT13 8DP

+44 (0)1932 843322

Reference: CWE250310

Request a viewing for this property

Simply fill out the form below or alternatively call us on 020 7839 0888

* Mandatory fields