2 Bedroom First Floor Flat
£2,650 PCM
Oatlands Chase, 26 Oatlands Chase, Weybridge, Weybridge, Surrey

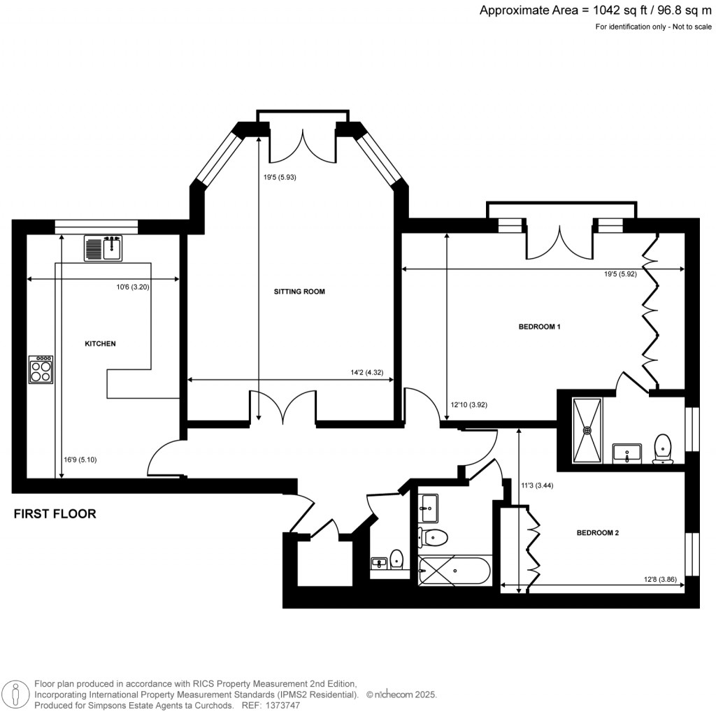
Floorplans For Oatlands Chase, 26 Oatlands Chase, Weybridge, Weybridge, Surrey
EPC Graph for Oatlands Chase, 26 Oatlands Chase, Weybridge, Weybridge, Surrey}

Description


Key Features

  • Gated Development
  • Secure residents parking space
  • Modernised throughout
  • Living space over 1000sqft
  • Two double bedrooms
  • Three Bathrooms
  • Council Tax Band: F
An executive apartment located within the popular development, Oakwood Grange. The property has been modernised throughout and comprises; Reception room, fully fitted kitchen, principle bedroom with dressing area and ensuite, second bedroom with en suite and a separate WC which is ideal for guests when visiting. The property benefits from one residents parking space and use of the communal gardens. Available from December 2025 and offered on an unfurnished basis.
Curchods

Curchods

Portmore House, 54 Church Street
Weybridge
Surrey
KT13 8DP

+44 (0)1932 823625

Reference: CWD250136

Request a viewing for this property

Simply fill out the form below or alternatively call us on 020 7839 0888

* Mandatory fields