2 Bedroom Upper Floor Flat
£549,000
Church Grove, Hampton Wick

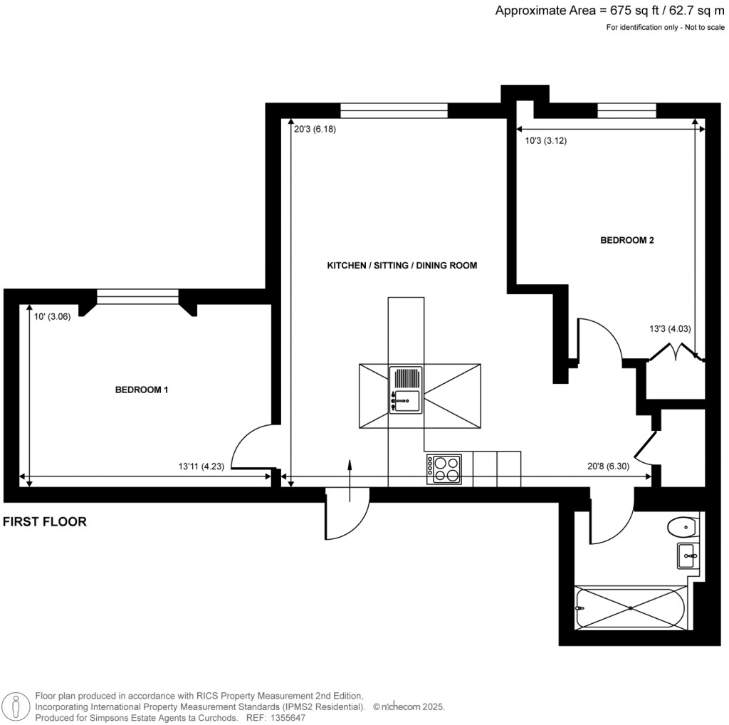
Floorplans For Church Grove, Hampton Wick
EPC Graph for Church Grove, Hampton Wick}

Description


Key Features

  • Two double bedroom first floor apartment
  • Superb location for Bushy and Home Parks
  • Stylish open plan living space
  • Sleek modern bathroom
  • High ceilings and skylight
  • Communal garden
  • Short walk from Hampton Wick Station
  • Share of Freehold with 995 years remaining as of September 2025
  • Council Tax Band: C
  • Tenure: Share of Freehold
Superbly positioned near Bushy Park, Home Park, the River Thames, and Hampton Wick Station, this stylish two double bedroom first floor apartment offers a perfect blend of charm and convenience. The impressive open plan kitchen, living, and dining area is flooded with natural light from a skylight, creating a bright and welcoming space ideal for modern living. Both bedrooms are generously proportioned and complemented by a modern bathroom. Additionally, the property benefits from a communal garden, enhancing its appeal and making this a special home in a highly sought after location.
Curchods

Curchods

21 High Street
Teddington
Middlesex
TW11 8EU

+44 (0)20 8977 3374

Reference: CTN250354

Request a viewing for this property

Simply fill out the form below or alternatively call us on 020 7839 0888

* Mandatory fields