5 Bedroom Semi Detached House
£2,350,000
Udney Park Road, Teddington

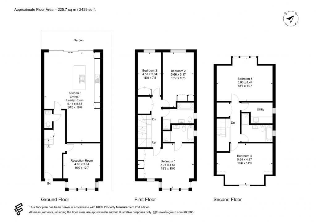
Floorplans For Udney Park Road, Teddington
EPC Graph for Udney Park Road, Teddington}

Description


Key Features

  • Stunning new build residence
  • Semi-detached house
  • Contemporary interior design
  • Five double bedrooms
  • Three luxury bathrooms with separate showers
  • West facing garden
  • Off street parking with electric charging point
  • Close to High Street, station, river and Bushy Park
  • Council Tax Band: G
  • Tenure: Freehold
This substantial new build property offers almost 2430 sqft of versatile living space. Finished to a high quality and specification with bespoke and contemporary interior design, making it the perfect home for the modern family.

Featuring a fabulous kitchen with peninsular breakfast bar and integrated appliances, open plan to a generous dining space and seating area, providing 30ft of exceptional entertaining space with bi-folding doors opening to the wonderful west facing garden. There is also an elegant front reception room with large bay window on the ground floor and a stylish guest cloakroom.

On the first floor, the principal bedroom has a range of bespoke wardrobes and a large en-suite bath/shower room and there are a further two bedrooms sharing a luxury bathroom with separate shower.

Across the top floor, there are two light and airy double bedrooms, another generous bath/shower room and a useful laundry room.

Bi-folding doors seamlessly open to the fabulous west facing rear garden which is well screened for privacy and has a patio area perfect for al fresco dining. A side gate provides access to the front of the property where there is off street parking for two cars and an electric charging point.
Curchods

Curchods

21 High Street
Teddington
Middlesex
TW11 8EU

+44 (0)20 8977 3374

Reference: CTN250121

Request a viewing for this property

Simply fill out the form below or alternatively call us on 020 7839 0888

* Mandatory fields