3 Bedroom Detached House
£1,195,000
Park Road, Teddington

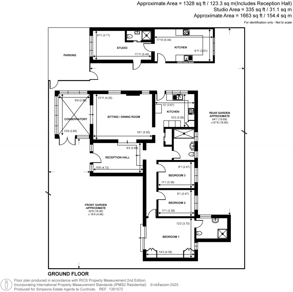
Floorplans For Park Road, Teddington
EPC Graph for Park Road, Teddington}

Description


Key Features

  • Detached bungalow
  • Rare opportunity
  • Development potential (STPP)
  • Tranquil location in the heart of Teddington
  • Generous lateral living space
  • Spacious sitting room, conservatory & reception hall
  • Three bedrooms & two bathrooms
  • Annex accommodation with kitchen
  • Secluded wraparound garden
  • Two parking spaces on drive
  • No onward chain
  • Council Tax Band: G
  • Tenure: Freehold
Rare opportunity to acquire a three bedroom detached bungalow offering 1328sqft of generous single level and lateral living space. Set back from Park Road and approached from a small lane, it enjoys a tranquil and idyllic position in the heart of Teddington, moments from the station, High Street and Bushy Park. Requiring modernisation with development potential (STPP), this is a fabulous opportunity to create a home to your own design and specification. Surrounded by mature gardens, the three bedroom property also has a large reception hall, conservatory adjoining the sitting room and studio with kitchen in the converted garage. There are also two off street parking spaces on the front driveway. No onward chain.
Curchods

Curchods

21 High Street
Teddington
Middlesex
TW11 8EU

+44 (0)20 8977 3374

Reference: CTN250073

Request a viewing for this property

Simply fill out the form below or alternatively call us on 020 7839 0888

* Mandatory fields