2 Bedroom Detached Bungalow
£699,950
Hamhaugh Island, Shepperton, Surrey

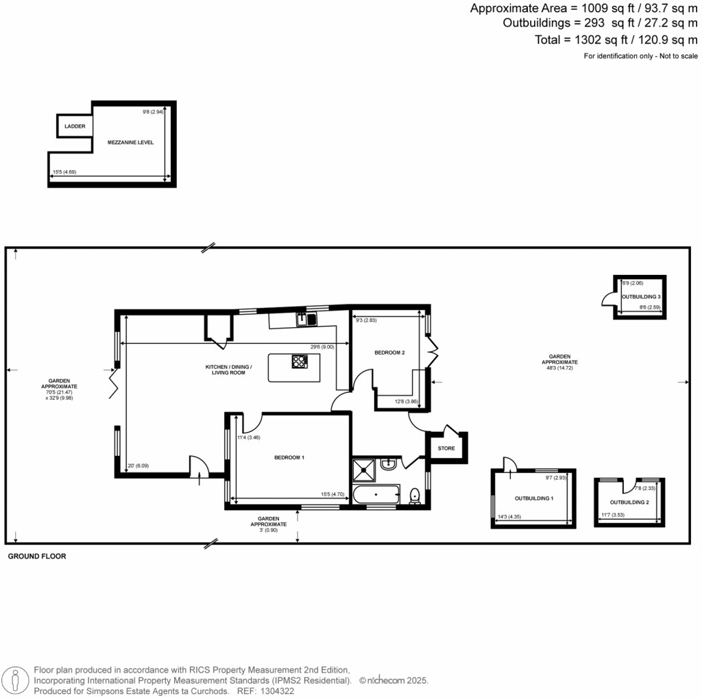
Floorplans For Hamhaugh Island, Shepperton, Surrey
EPC Graph for Hamhaugh Island, Shepperton, Surrey}

Description


Key Features

  • Riverside home
  • 33ft mooring
  • Private island location
  • 2 bedrooms
  • Beautiful river views and frontage
  • Scope for improvement and extension stpp
  • 3 parking spaces
  • No onward chain
  • Tenure: Freehold
The living space consists of a large open plan living space with vaulted ceiling, space for a dining area with bi-fold doors which lead out to the river facing terrace. There is a modern kitchen with central island and steps to an upper mezzanine level which could be extended if desired. The spacious main bedroom has a feature fireplace and solid wood flooring. There is a second double bedroom with a range of built in wardrobes and a family bathroom. To the front a pretty private garden leads to the house and front deck. To the front there is a one bedroom annexe with shower room and two storage sheds. To the rear of the house there is a terrace which overlooks the south facing garden with a riverside Kontiki hut overlooking the river and 33' mooring There are three private parking spaces located next to The Thames Court pub.
Curchods

Curchods

58 High Street
Shepperton
Middlesex
TW17 9AU

+44 (0)1932 230033

Reference: CSN240183

Request a viewing for this property

Simply fill out the form below or alternatively call us on 020 7839 0888

* Mandatory fields