3 Bedroom Detached Bungalow
£800,000
Towpath, Shepperton, Surrey

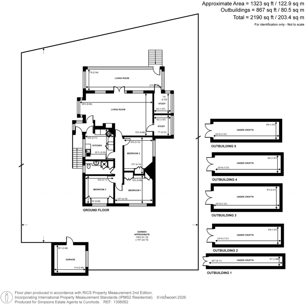
Floorplans For Towpath, Shepperton, Surrey
EPC Graph for Towpath, Shepperton, Surrey}

Description


Key Features

  • Highly sought-after Towpath location in Shepperton
  • Original timber bungalow set on a generous plot
  • Direct River Thames frontage with private mooring
  • Exceptional opportunity for redevelopment or significant improvement (STPP)
  • Peaceful riverside setting with picturesque views and river access Mature gardens offering a good degree of privacy and seclusion
  • Existing accommodation arranged over a single level
  • Scope to create a bespoke riverside home tailored to individual requirements
  • Multiple outbuildings and undercroft areas providing additional storage or flexibility
  • Convenient access to Shepperton High Street, riverside walks and leisure facilities
  • Shepperton Station providing regular services to London Waterloo
  • Offered with no onward chain
  • Council Tax Band: E
  • Tenure: Freehold
Set back from the road and surrounded by mature greenery, the bungalow enjoys a peaceful and semi-rural atmosphere while remaining conveniently placed for local amenities. The existing accommodation is arranged across a single level and includes a spacious living room with views over the garden, a kitchen, three bedrooms and a bathroom. While the property would benefit from comprehensive modernisation, it offers an excellent footprint and layout for those seeking to reimagine or replace the current dwelling.

A notable feature of White Lodge is the expansive plot, which extends to well-proportioned gardens offering a high degree of privacy. The riverside boundary provides direct access to the Thames, where the private mooring creates an enviable lifestyle opportunity for boating enthusiasts, paddleboarders or those simply wishing to enjoy waterside living.

In addition, there are several undercroft areas providing further flexibility for storage or potential ancillary use. The plot size and position lend themselves well to a variety of redevelopment possibilities, making this a compelling prospect for owner-occupiers, investors or developers alike.

White Lodge represents a truly rare opportunity to acquire a riverfront property in one of Shepperton’s most sought-after locations, offering huge potential to create a bespoke home tailored to individual requirements, subject to planning permission.

This property is for sale by the Modern Method of Auction, meaning the buyer and seller are to Complete within 56 days (the "Reservation Period"). Interested parties personal data will be shared with the Auctioneer (iamsold).
If considering buying with a mortgage, inspect and consider the property carefully with your lender before bidding.

A Buyer Information Pack is provided. The winning bidder will pay £349.00 including VAT for this pack which you must view before bidding.
The buyer signs a Reservation Agreement and makes payment of a non-refundable Reservation Fee of 4.5% of the purchase price including VAT, subject to a minimum of £6,600.00 including VAT. This is paid to reserve the property to the buyer during the Reservation Period and is paid in addition to the purchase price. This is considered within calculations for Stamp Duty Land Tax.
Services may be recommended by the Agent or Auctioneer in which they will receive payment from the service provider if the service is taken. Any payment that will be received by the Agent or Auctioneer will be confirmed to you in writing before services are taken. Services are optional.
Curchods

Curchods

58 High Street
Shepperton
Middlesex
TW17 9AU

+44 (0)1932 230033

Reference: CSN220268

Request a viewing for this property

Simply fill out the form below or alternatively call us on 020 7839 0888

* Mandatory fields