4 Bedroom Semi Detached House
£950,000
Wadham Close, Shepperton, Surrey

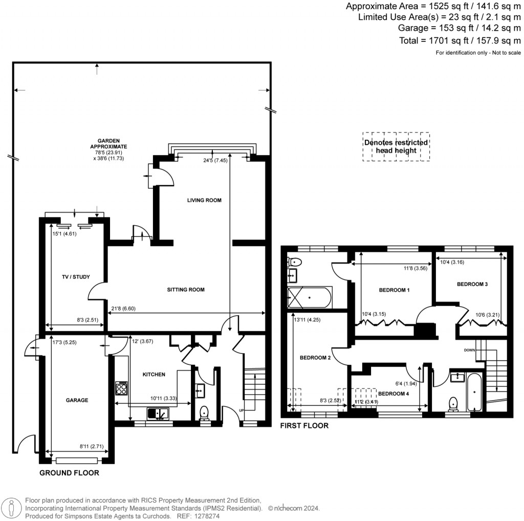
Floorplans For Wadham Close, Shepperton, Surrey
EPC Graph for Wadham Close, Shepperton, Surrey}

Description


Key Features

  • Highly sought-after and rarely available cul-de-sac location in central Shepperton
  • Just moments from the River Thames, High Street and well-regarded local schools
  • Beautifully presented four-bedroom semi-detached family home
  • Spacious and versatile accommodation arranged over two floors
  • Impressive open-plan living and dining space with excellent natural light
  • Well-appointed kitchen with scope to personalise and improve
  • Four well-proportioned bedrooms and modern family bathroom
  • Private and well-maintained rear garden with patio, ideal for entertaining
  • Off-street parking and integral garage
  • Offered in immaculate condition with significant potential to extend or enhance, subject to the necessary permissions.
  • Council Tax Band: E
  • Tenure: Freehold
The property is approached via a spacious front driveway providing ample off-street parking and access to an integral garage. Upon entering, you are immediately struck by the sense of light and space, with a welcoming entrance hall leading through to the main living accommodation.

The ground floor is a particular highlight, featuring a spacious sitting room which flows seamlessly into a stunning rear living/dining area. This impressive open-plan space is flooded with natural light courtesy of large sliding doors and windows, creating a superb connection to the garden and an ideal environment for both everyday family life and entertaining. Off this room is an extra reception, again with double sliding doors out onto the garden which would make a lovely office or playroom. The kitchen is fitted with a comprehensive range of units and work surfaces, offering a bright and functional space with scope for personalisation, and is complemented by a ground floor cloakroom and internal access to the garage.

Upstairs, the first floor provides four well-proportioned bedrooms, all served by a modern family bathroom and all with built-in storage. The principle bedroom also has a generous en-suite bathroom. The layout lends itself perfectly to growing families, home working or guest accommodation, with excellent flexibility throughout.

Externally, the beautiful rear garden is super private, well maintained and mainly laid to lawn, with a generous patio area ideal for outdoor dining. The plot offers excellent potential to further extend or enhance the property, subject to the usual planning permissions, without compromising garden space.

Offered to the market in impeccable decorative order, this is a home that can be enjoyed immediately while also presenting exciting future potential. Wadham Close is a hugely popular location thanks to its quiet, community feel combined with outstanding convenience, placing riverside walks, shops, cafés, restaurants and mainline rail links all within easy reach.

An exceptional opportunity to secure a quality family home in one of Shepperton’s most desirable residential settings.
Curchods

Curchods

58 High Street
Shepperton
Middlesex
TW17 9AU

+44 (0)1932 230033

Reference: CSN220017

Request a viewing for this property

Simply fill out the form below or alternatively call us on 020 7839 0888

* Mandatory fields