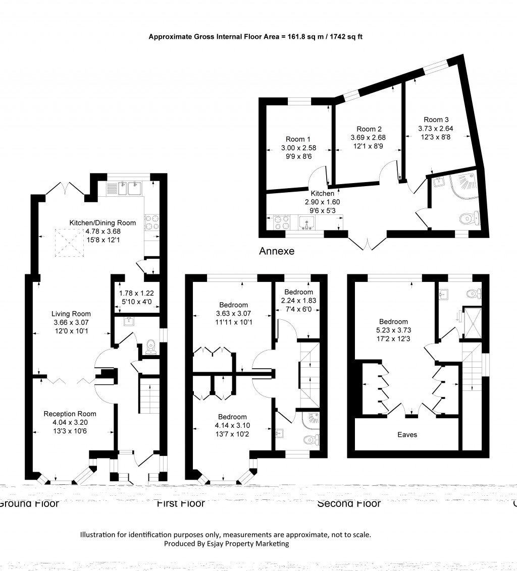
This 4 bedroom semi-detached family house is located in the popular Old Malden area and has extended and open-plan ground floor living space opening to a southerly-facing garden with a very useful annexe. Presented in very good decorative condition throughout, a smart fitted kitchen has a separate utility area and in addition to there being 2 shower rooms over the upper floors, there is also an extremely handy ground floor WC.
Making time to have a look at what this ideal family home has to offer is essential.