1 Bedroom First Floor Flat
£170,000
Chelmsford, Essex

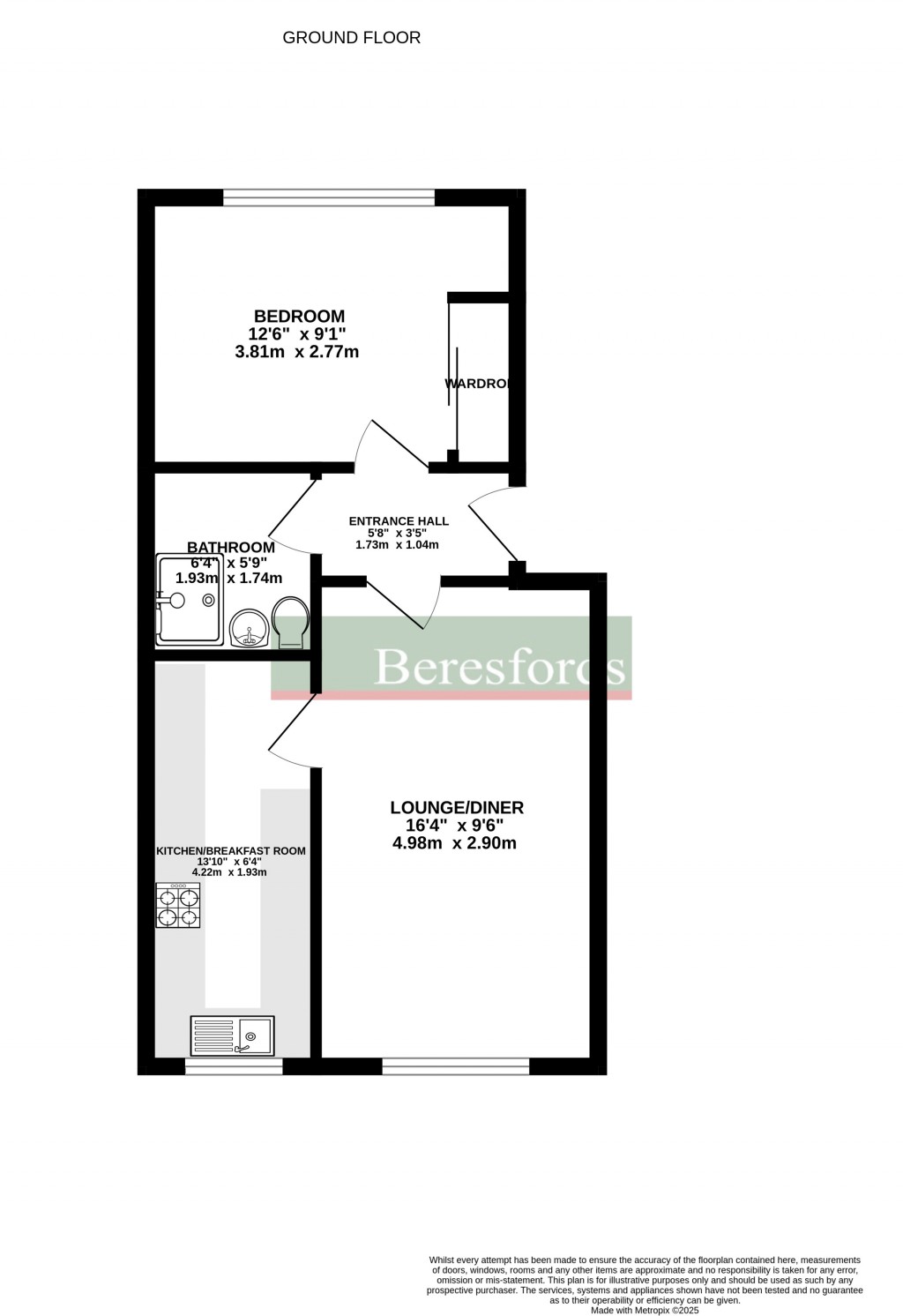
Floorplans For Chelmsford, Essex
EPC Graph for Chelmsford, Essex}

Description


Key Features

  • No onward chain
  • Cash buyers only - short lease
  • One bedroom
  • Ground floor apartment
  • Modern fitted kitchen / breakfast room
  • Contemporary bathroom
  • Allocated parking
  • Communal garden
  • Council Tax Band: B
  • Tenure: Leasehold
This well-maintained one bedroom ground floor flat offers comfortable living throughout, featuring a spacious lounge / diner and a modern fitted kitchen / breakfast room, a contemporary bathroom, and a good-sized double bedroom.

Residents can enjoy a communal garden and the convenience of allocated parking.

Ideally suited to first tuime buyers ior investors alike this property is offered with no onward chain, allowing for a smooth and swift purchase.

The property will be offered with a new lease

Reference: CHS250430

Request a viewing for this property

Simply fill out the form below or alternatively call us on 020 7839 0888

* Mandatory fields