4 Bedroom Detached House
£460,000
Chelmsford, Essex

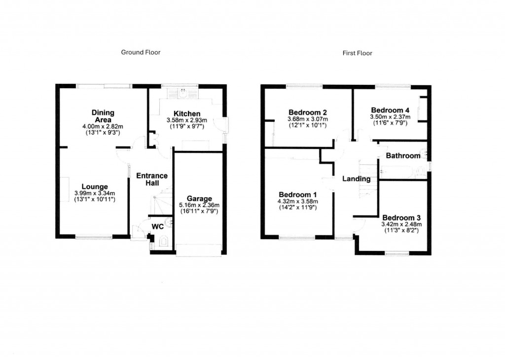
Floorplans For Chelmsford, Essex
EPC Graph for Chelmsford, Essex}

Description


Key Features

  • Four bedroom detached house
  • In need of modernisation
  • Spacious lounge / dining area
  • Generous rear garden
  • Garage and off-street parking
  • Sought-after location
  • Council Tax Band: E
  • Tenure: Freehold
Situated on a pleasant and quiet residential road, this four bedroom home offers a fantastic opportunity for those looking to modernise and create their ideal family property.

The accommodation is generously proportioned throughout, with the ground floor comprising a spacious lounge / dining area, and a separate kitchen. The first floor offers four well-sized bedrooms and a family bathroom. While the décor and fittings are dated, the property has been well cared for and provides a solid foundation for refurbishment.

Externally, the property benefits from a particularly generous rear garden, providing excellent space for outdoor entertaining, gardening, or family enjoyment. To the front, there is a garage along with off-street parking.

With great potential, ample space, and a peaceful setting, this is an exciting prospect for buyers keen to add value and personalise a home to their own specification.

Reference: CHS250340

Request a viewing for this property

Simply fill out the form below or alternatively call us on 020 7839 0888

* Mandatory fields