3 Bedroom Semi Detached House
£865,000
Elm Grove Road, Cobham, Surrey

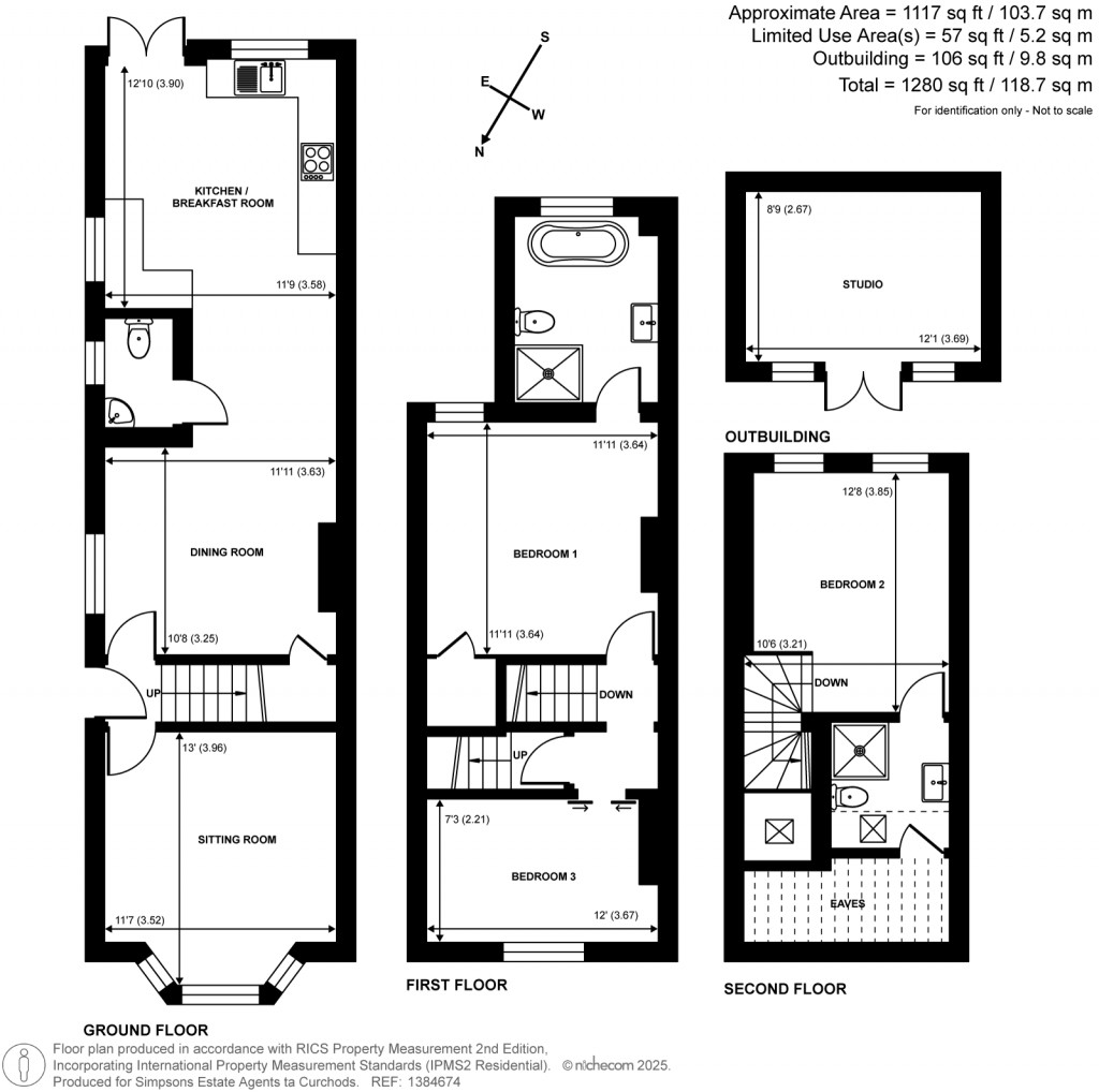
Floorplans For Elm Grove Road, Cobham, Surrey
EPC Graph for Elm Grove Road, Cobham, Surrey}

Description


Key Features

  • A rare opportunity to purchase in the Tilt conservation area of Cobham
  • Quintessential Victorian red brick semi-detached home
  • Lovely, open-plan kitchen/dining/family area
  • Private south-east facing garden with garden studio
  • Gas coal effect traditional fireplace
  • Impressive second floor principal bedroom en-suite
  • Downstairs W/C
  • Less than a mile to Cobham & Stoke D'Abernon station
  • Council Tax Band: E
  • Tenure: Freehold
A traditional, bay fronted red brick Victorian semi-detached property extended to provide a large modern kitchen and a superb bedroom en-suite in the converted loft space. Beautifully presented throughout with contemporary, recently refurbished bathrooms and well-proportioned rooms, this is a superb opportunity to buy in a popular road just off The Tilt with convenient access to the station as well as the High Street. To the rear, there is an attractive south-east facing garden containing a newly constructed garden studio.
Curchods

Curchods

40 St James's Place
Cobham
Surrey
KT11 3DQ

+44 (0)1932 860999

Reference: CHD252636

Request a viewing for this property

Simply fill out the form below or alternatively call us on 020 7839 0888

* Mandatory fields